1 bedroom Flat Sold STC

Barton Avenue, Keyham, Plymouth, PL2

£110,000 | Sold STC

1 Bedrooms
1 Bathrooms
1 Receptions

Plymouth

22 Sutton Road, 
Plymouth, 
PL4 0HN, 
England
Standout Features

Property Description

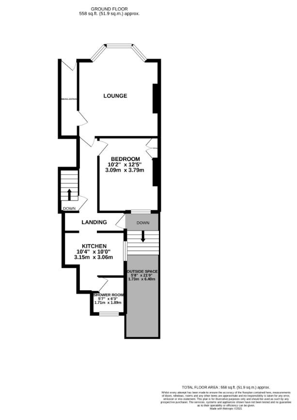
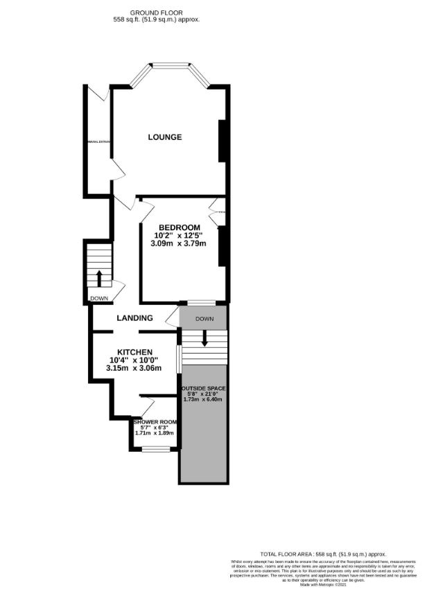
Conveniently located in Keyham with easy access to the Dockyard, City Centre and A38 is this neutrally redecorated and spacious ground floor one bedroom flat with the additional benefit of a large basement.

Entering the property into the living room, the flat is spacious throughout and comprises of a double bedroom with window overlooking the communal courtyard, fitted kitchen and shower room.

Accessed via the hallway, is the basement which is a huge benefit as it provides large amount of storage or the option renovate and expand the property into downstairs!

OFFERED TO THE MARKET WITH NO CHAIN! The property is currently tenanted and is a fantastic opportunity for a Landlord to add to their portfolio. It currently achieves an annual market rent of £9,180pa which produces an estimated yield of an incredible approx. 9%.  

The property is also a great first-time purchase as the property can also be sold with vacant possession.  

Tenure: Leasehold

Lease remaining : APPROX 995 years 

Council tax band – A

EPC Rating - D

Disclaimer

These particulars are issued in good faith but do not constitute representations of fact or form part of any offer or contract. The matters referred to in these particulars should be independently verified by prospective buyers or tenants. Neither Northwood nor any of its employees or agents has any authority to make or give any representation or warranty whatever in relation to this property.

We endeavour to make our sales particulars accurate and reliable, however, they do not constitute or form part of an offer or any contract and none is to be relied upon as statements of representation or fact. Any services, systems and appliances listed in this specification have not been tested by us and no guarantee as to their operating ability or efficiency is given. All measurements have been taken as a guide to prospective buyers only and are not precise.

If you require clarification or further information on any points, please contact us, especially if you are travelling some distance to view. Fixtures and fittings other than those mentioned are to be agreed with the seller by separate negotiation.

  EPC rating: D. Council tax band: A, Tenure: Leasehold,

Additional Information
EPC Rating:
D
Tenure:
Leasehold
Council Tax Band:
A

Mortgage calculator

Calculate Your Stamp Duty
£
Results
Stamp Duty To Pay:
Effective Rate:
Tax Band % Taxable Sum Tax

Barton Avenue, Keyham, Plymouth, PL2

Struggling to find a property? Get in touch and we'll help you find your ideal property.

Interested in viewing this property?
Book a Viewing
Main menu