5 bedroom Terraced House For Sale

Belford Terrace East, Ashbrooke, Sunderland, SR2

Offers over £480,000 | For Sale

5 Bedrooms
3 Bathrooms
3 Receptions

Sunderland

48 Frederick St, 
Sunniside, 
Sunderland, 
SR1 1NF, 
England
Standout Features

Property Description

This exceptional five bedroom mid-terrace home is located on a prestigious private road within the highly sought-after and leafy suburb of Ashbrooke. The property seamlessly blends an abundance of original period features with high-quality modernisation, creating a home of real character and refinement.

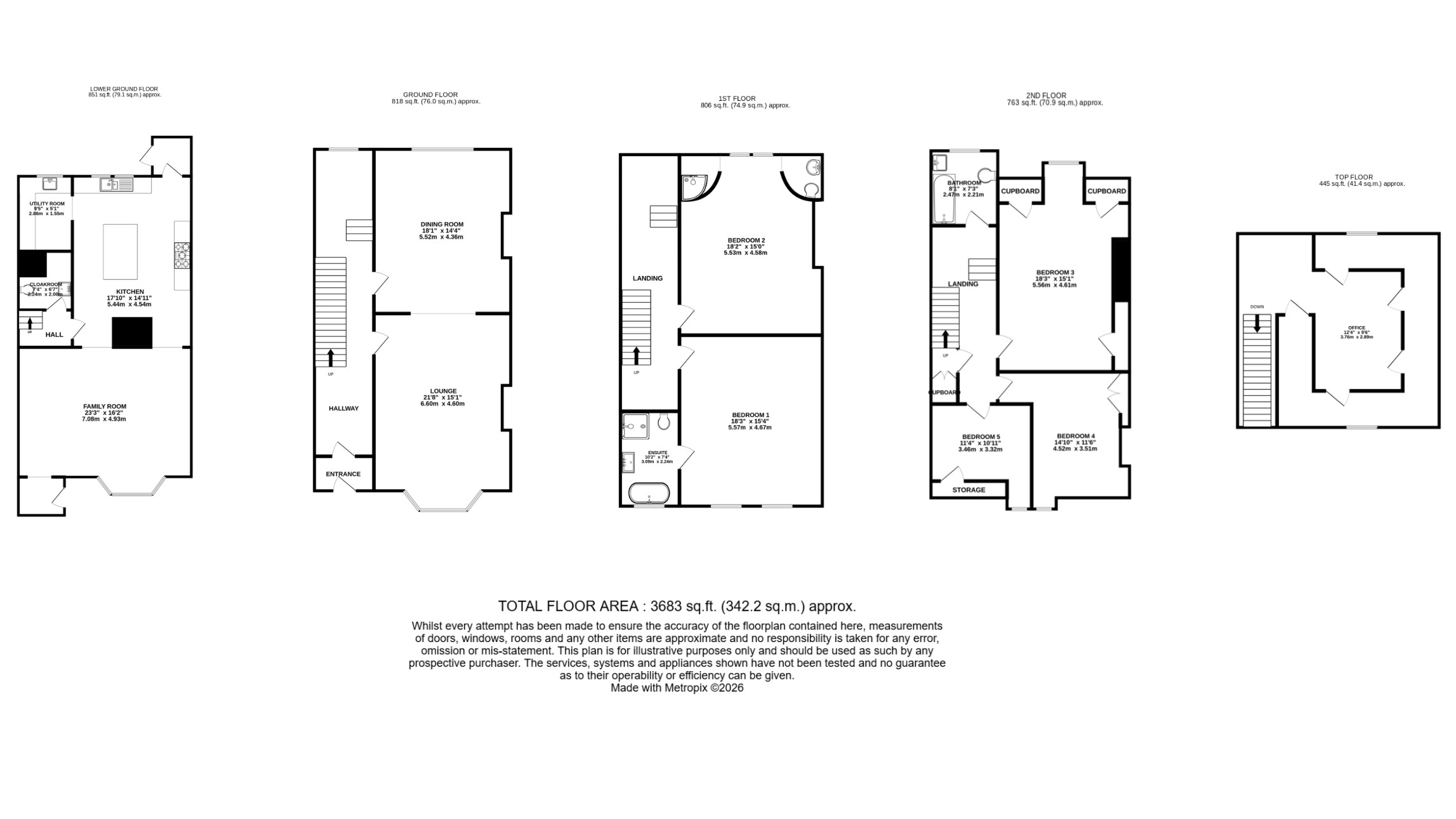
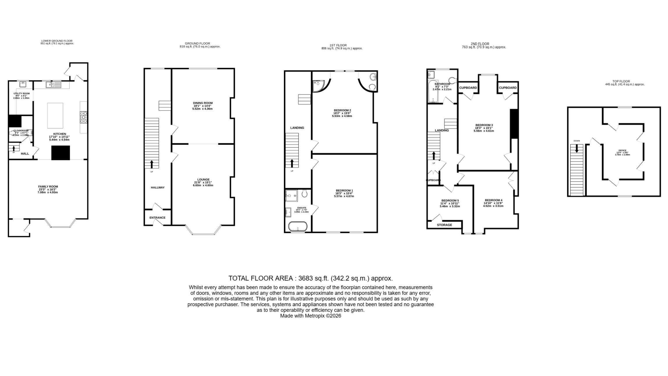
The spacious and versatile accommodation is arranged over four floors. The ground floor features an entrance vestibule, an impressive reception hallway, a generous lounge and an elegant dining room. The lower ground floor offers a superb family room with log burner, a beautifully appointed kitchen, utility room, and both front and rear entrance vestibules. On the first floor there is a principal bedroom with en-suite bathroom, along with a further bedroom benefiting from en-suite shower facilities. The second floor provides three additional well-proportioned bedrooms and a family bathroom, while the top floor offers a useful loft space currently utilised as a home office.

The property benefits from double glazing and gas central heating throughout. To the front, there is an attractive lawned garden with mature, well-stocked borders and a patio seating area. To the rear is a fully enclosed paved area with an electric roller shutter door, providing secure off-street parking.

Situated within the Ashbrooke Conservation Area, the property is ideally placed for a wide range of local amenities, highly regarded state and private schools, and excellent transport links to Sunderland, Durham and Newcastle city centres, as well as convenient access to local and national road networks. Early viewing is strongly recommended to fully appreciate the quality, space and setting of this superb family home.

EPC Rating D

 

Council Tax Band D

 

Tenure - The agent understands the property to freehold. However, this should be confirmed with a licensed legal representative.

 

To secure a viewing in the first instance please contact Northwood Sunderland on 0191-5461973 or visit our website northwooduk.com.

 

We endeavour to make our sales particulars accurate and reliable, however, they do not constitute or form part of an offer or any contract and none is to be relied upon as statements of representation or fact. Any services, systems and appliances listed in this specification have not been tested by us and no guarantee as to their operating ability or efficiency is given. All measurements have been taken as a guide to prospective buyers only, and are not precise. If you require clarification or further information on any points, please contact us, especially if you are travelling some distance to view. Fixtures and fittings other than those mentioned are to be agreed with the seller by separate negotiation. EPC rating: D. Council tax band: D, Tenure: Freehold,

Additional Information
EPC Rating:
D
Tenure:
Freehold
Council Tax Band:
D
Rooms
Entrance Vestibule
Reception Hallway
Ground Floor
Lounge
6.6m x 4.6m (21'8" x 15'1")
Dining Room
5.52m x 4.36m (18'1" x 14'4")
Stairs to;
Lower Ground Floor
Family Room
4.93m x 7.08m (16'2" x 23'3")
Kitchen
5.44m x 4.54m (17'10" x 14'11")
Utility Room
2.86m x 1.55m (9'5" x 5'1")
Cloakroom
2.24m x 2m (7'4" x 6'7")
Front Vestibule
Rear Vestibule
First Floor
Bedroom One
5.57m x 4.67m (18'3" x 15'4")
En-Suite Bathroom
3.09m x 2.24m (10'2" x 7'4")
Bedroom Two
5.53m x 4.58m (18'2" x 15'0")
En-Suite Shower and WC
Stairs to;
Half Landing
Family Bathroom
2.47m x 2.21m (8'1" x 7'3")
Second Floor Landing
Bedroom Three
5.56m x 4.61m (18'3" x 15'1")
Bedroom Four
4.52m x 3.51m (14'10" x 11'6")
Bedroom Five
3.46m x 3.32m (11'4" x 10'11")
Stairs to;
Top Floor
Office
3.76m x 2.89m (12'4" x 9'6")
Outside

Mortgage calculator

Calculate Your Stamp Duty
£
Results
Stamp Duty To Pay:
Effective Rate:
Tax Band % Taxable Sum Tax

Belford Terrace East, Ashbrooke, Sunderland, SR2

Struggling to find a property? Get in touch and we'll help you find your ideal property.

Interested in viewing this property?
Book a Viewing
Main menu