4 bedroom Town house For Sale

The Knightsley | Knights View, Macclesfield, SK11

From £415,000 | Available

4 Bedrooms
3 Bathrooms
2 Receptions

Macclesfield

22 Church Street, 
Macclesfield, 
SK11 6LB, 
England
Property Description

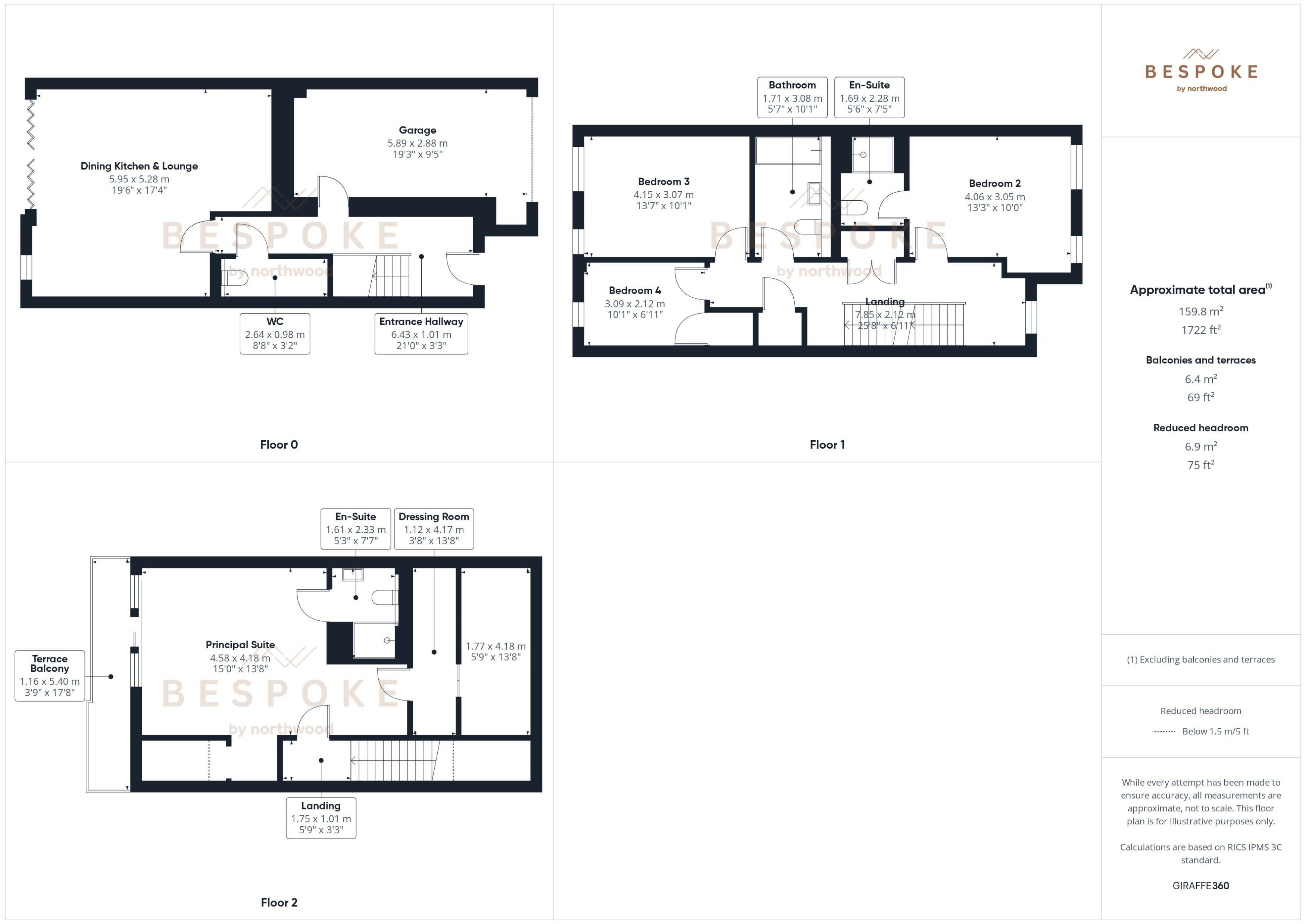
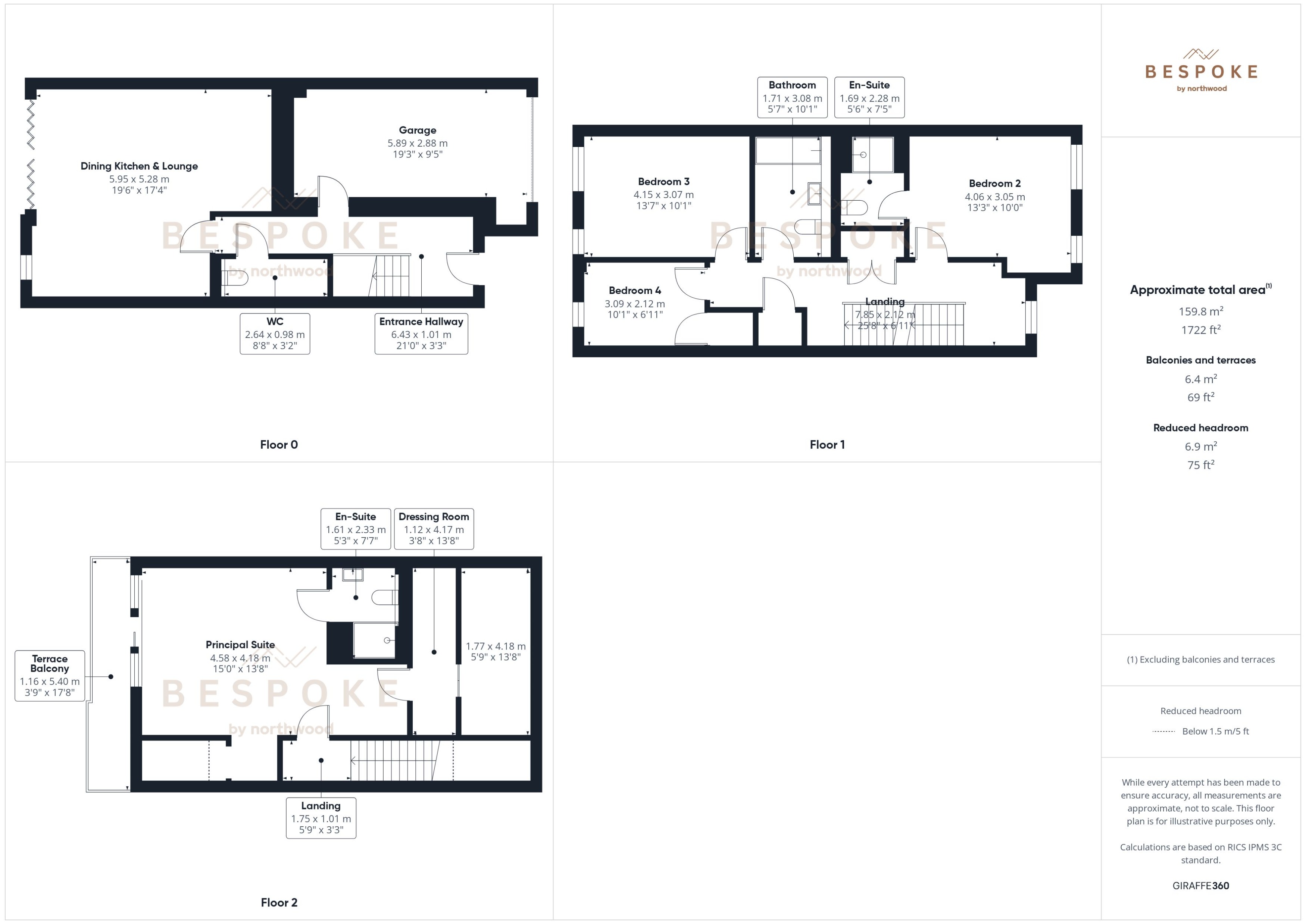
The Knightsley is a spacious three-storey home with four bedrooms, an integral garage, and a private roof terrace.

 

On the ground floor, you will find an integral garage, entrance hall with WC and storage, a central kitchen, and a rear-facing lounge/diner with bi-folding doors to the garden.

 

The first floor features a front-facing en-suite bedroom, two rear-facing bedrooms (one with a built-in cupboard), a family bathroom, and a separate storage room.

 

The top floor is home to a luxurious rear-facing principal suite, complete with a dressing area, en-suite, and access to a private roof terrace - perfect for quiet mornings or summer evenings.

 

Externally, The Knightsley includes driveway parking to the front, a private rear garden, and a bin store located at the back.

 

The Knightsley is the largest house type in the development, offering 1,824 sq ft across three floors. It includes four bedrooms, an integral garage, and a private roof terrace.

On the ground floor, there’s an integral garage, entrance hall with WC and storage, a central kitchen, and a rear-facing lounge/diner with bi-folding doors opening onto the garden.

The first floor features a front-facing en-suite bedroom, two rear-facing bedrooms (one with a built-in cupboard), a family bathroom, and a separate storage room.

The top floor is dedicated to a luxurious rear-facing principal suite, complete with a dressing area, en-suite, and access to a private roof terrace overlooking Knights Pool - ideal for quiet mornings or summer evenings.

Externally, The Knightsley benefits from driveway parking to the front, a private rear garden, and a bin store to the rear.

 

Phase One

Plot 1: The Silk - £350,000 - SOLD & COMPLETED

Plot 2: The Weavers - £400,000 - Available

Plot 3: The Weavers - £400,000 - SSTC

Plot 4: The Knightsley - £415,000 - Available

Plot 5: The Knightlsey - £415,000 - SSTC

Plot 6: The Treacle - £410,000 - SSTC

Phase Two


Plot 7:
 The Buckingham - £410,000 - Coming Soon (Pre-registration available)

Plot 8: The Knightsley - £435,000 - SSTC

Plot 9: The Knightsley - £435,000 - Coming Soon (Pre-registration available)

Plot 10: The Knightsley - £435,000 - Coming Soon (Pre-registration available)

Plot 11: The Knightsley - £435,000 - Coming Soon (Pre-registration available)

Plot 12: The Buckingham - £410,000 - Coming Soon (Pre-registration available)

EPC rating: Unknown. Council tax band: X,

Mortgage calculator

Calculate Your Stamp Duty
£
Results
Stamp Duty To Pay:
Effective Rate:
Tax Band % Taxable Sum Tax

The Knightsley | Knights View, Macclesfield, SK11

Struggling to find a property? Get in touch and we'll help you find your ideal property.

Interested in viewing this property?
Book a Viewing
Main menu