4 bedroom Town house Sold STC

Greenhills Close, Macclesfield, SK11

Guide Price £400,000 | Sold STC

4 Bedrooms
3 Bathrooms
2 Receptions

Macclesfield

22 Church Street, 
Macclesfield, 
SK11 6LB, 
England
Property Description

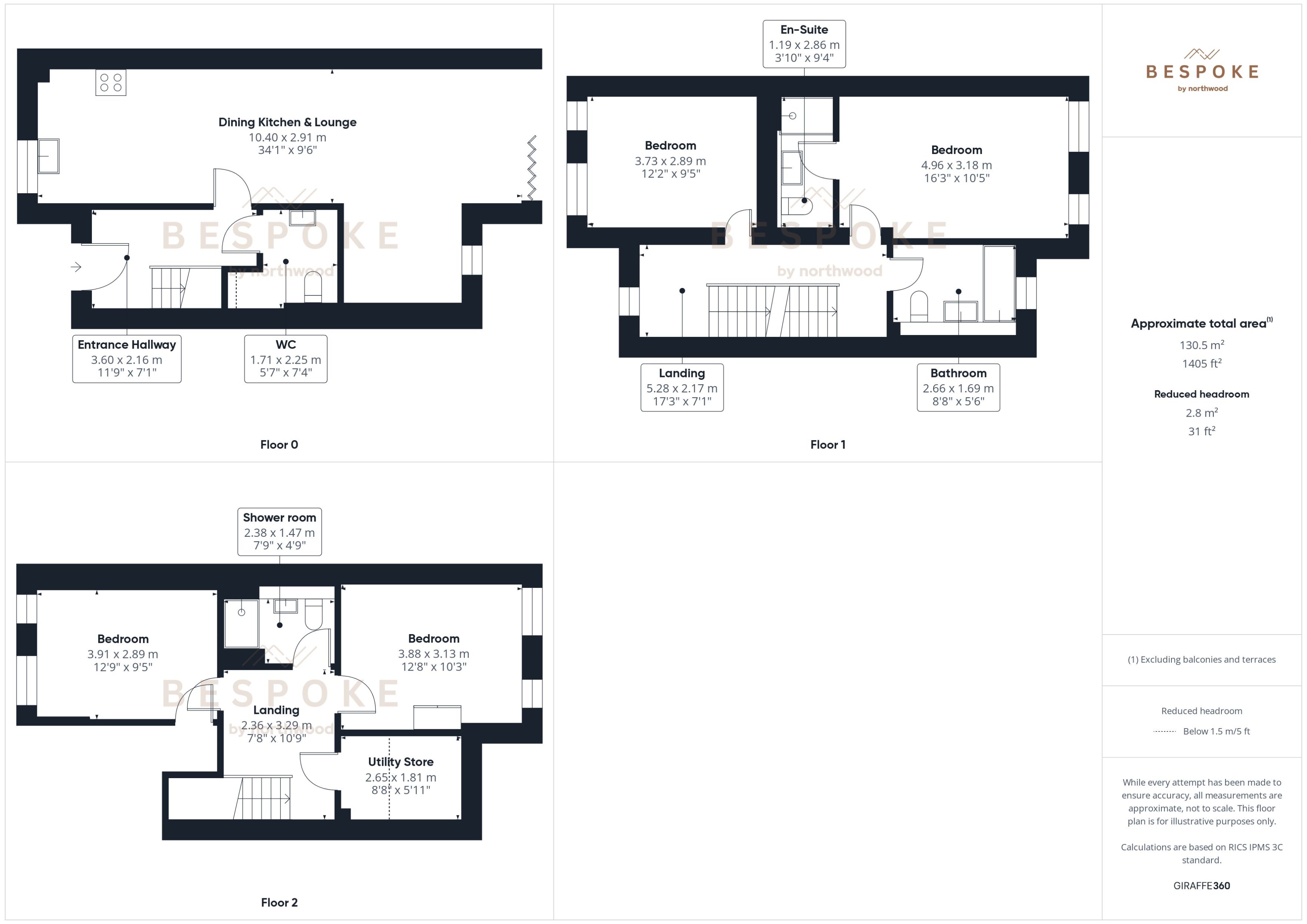
The Weavers is a stylish three-storey townhouse with four bedrooms and a versatile family layout. The ground floor features a front-facing kitchen, guest WC, under-stairs storage, and a bright open-plan lounge/diner to the rear with bi-folding doors opening onto the garden.

 

The first floor includes a rear-facing principal bedroom with en-suite, a second front-facing double bedroom, and a family bathroom. On the top floor, you'll find two further bedrooms (front and rear-facing), a shower room, and a storage cupboard on the landing.

 

Each Weavers home includes two parking spaces, a front garden, a private rear garden with bin and bike stores, and a thoughtful layout designed for modern family life.

 

The Knightsley is the largest house type in the development, offering 1,824 sq ft across three floors. It includes four bedrooms, an integral garage, and a private roof terrace.

On the ground floor, there’s an integral garage, entrance hall with WC and storage, a central kitchen, and a rear-facing lounge/diner with bi-folding doors opening onto the garden.

The first floor features a front-facing en-suite bedroom, two rear-facing bedrooms (one with a built-in cupboard), a family bathroom, and a separate storage room.

The top floor is dedicated to a luxurious rear-facing principal suite, complete with a dressing area, en-suite, and access to a private roof terrace overlooking Knights Pool - ideal for quiet mornings or summer evenings.

Externally, The Knightsley benefits from driveway parking to the front, a private rear garden, and a bin store to the rear.

The Knightsley is the largest house type in the development, offering 1,824 sq ft across three floors. It includes four bedrooms, an integral garage, and a private roof terrace.

On the ground floor, there’s an integral garage, entrance hall with WC and storage, a central kitchen, and a rear-facing lounge/diner with bi-folding doors opening onto the garden.

The first floor features a front-facing en-suite bedroom, two rear-facing bedrooms (one with a built-in cupboard), a family bathroom, and a separate storage room.

The top floor is dedicated to a luxurious rear-facing principal suite, complete with a dressing area, en-suite, and access to a private roof terrace overlooking Knights Pool - ideal for quiet mornings or summer evenings.

Externally, The Knightsley benefits from driveway parking to the front, a private rear garden, and a bin store to the rear.

 

Phase One

Plot 1: The Silk - £350,000 - SSTC

Plot 2: The Weavers - £400,000 - SSTC

Plot 3: The Weavers - £400,000 - SSTC

Plot 4: The Knightsley - £415,000 - Available

Plot 5: The Knightlsey - £415,000 - SSTC

Plot 6: The Treacle - £410,000 - SSTC

Phase Two


Plot 7:
 The Buckingham - £410,000 - Available

Plot 8: The Knightsley - £435,000 - SSTC

Plot 9: The Knightsley - £435,000 - SSTC

Plot 10: The Knightsley - £435,000 - SSTC

Plot 11: The Knightsley - £435,000 - SSTC

Plot 12: The Buckingham - £410,000 - Available EPC rating: A. Council tax band: X,

Additional Information
EPC Rating:
A

Mortgage calculator

Calculate Your Stamp Duty
£
Results
Stamp Duty To Pay:
Effective Rate:
Tax Band % Taxable Sum Tax

Greenhills Close, Macclesfield, SK11

Struggling to find a property? Get in touch and we'll help you find your ideal property.

Interested in viewing this property?
Book a Viewing
Main menu