4 bedroom Town house For Sale

Forge Lane, Congleton, CW12

Guide Price £315,000 | For Sale

4 Bedrooms
2 Bathrooms
2 Receptions

Macclesfield

22 Church Street, 
Macclesfield, 
SK11 6LB, 
England
Standout Features

Property Description

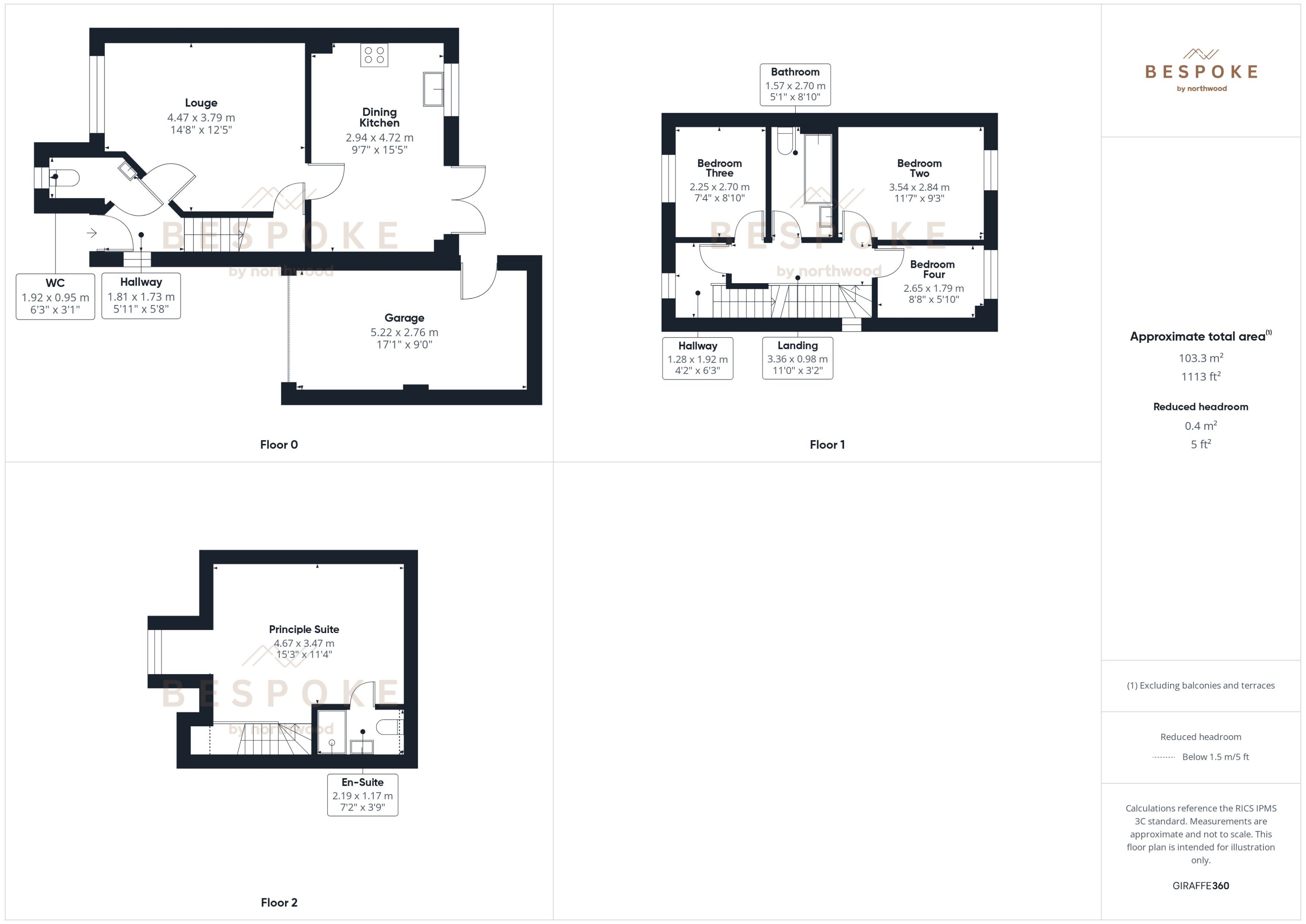
Forge Lane is a modern family home set across three floors, with flexible accommodation and a woodland backdrop where seasonal deer can often be seen. The property combines everyday practicality with lifestyle appeal, featuring a contemporary dining kitchen that opens onto the garden, a welcoming lounge, and four well-proportioned bedrooms including a principal suite with fitted wardrobes and en-suite.

The garden, enclosed and finished with Indian sandstone and lawn, is ideal for family entertaining, while the woodland outlook offers a unique sense of privacy. Additional benefits include driveway parking, garage, and an air filtration system fitted throughout the home. Positioned in Congleton with convenient access to local amenities, schools, and transport links, this is a home that blends comfort, space, and setting. EPC rating: B. Council tax band: D, Tenure: Freehold,

Additional Information
EPC Rating:
B
Tenure:
Freehold
Council Tax Band:
D
Rooms
Front Elevation

The property is approached by a driveway for two vehicles leading to the garage, with lawn, pathway, and established shrub and tree.

Entrance Hallway

Part-glazed composite front door, laminate flooring, pendant lighting, radiator, and courtesy window to the side. Infrastructure for an alarm system runs throughout the property. Access to first floor and lounge.

Lounge

Front-facing reception with laminate flooring, UPVC double-glazed window, pendant lighting, radiator, and understairs storage. Access to dining kitchen.

Dining Kitchen

Fitted with a range of modern cabinetry and heat-resistant square-edge worktops. Appliances include integrated fridge freezer, oven, gas hob with extractor and glass splashback, and dishwasher, with space for washing machine. Finished with pendant lighting, radiator, UPVC double-glazed window, and French doors to the garden.

Landing

Fitted carpet, pendant lighting, radiator, and courtesy side window.

Bedroom Two

Double bedroom with garden and woodland views. Finished with fitted carpet, pendant lighting, and radiator.

Bedroom Three

Front-facing double with fitted carpet, pendant lighting, radiator, and UPVC double-glazed window.

Bedroom Four

Rear-facing with woodland views, fitted carpet, pendant lighting, and radiator.

Bathroom

Appointed with vinyl flooring, low-level WC, wash hand basin, and bath with shower over. Includes extractor fan and pendant lighting.

Principle Suite

Set on the top floor with dormer UPVC window, Velux window, fitted wardrobes, radiators, and access to en-suite.

En-Suite

Part-tiled with low-level WC, wash hand basin, and electric shower. Radiator, pendant lighting, and extractor fan.

Garden

A private garden enclosed by fencing with lawn and Indian sandstone paving. Backs directly onto woodland, with seasonal deer providing a unique outlook.


Mortgage calculator

Calculate Your Stamp Duty
£
Results
Stamp Duty To Pay:
Effective Rate:
Tax Band % Taxable Sum Tax

Forge Lane, Congleton, CW12

Struggling to find a property? Get in touch and we'll help you find your ideal property.

Interested in viewing this property?
Book a Viewing
Main menu