3 bedroom Terraced House Sold STC

White Swan Close, Killingworth, Newcastle upon Tyne, NE12

£200,000 | Sold STC

3 Bedrooms
2 Bathrooms
2 Receptions

Newcastle

676 West Road, 
Denton Burn, 
Newcastle upon Tyne, 
NE5 2UR, 
England
Standout Features

Property Description

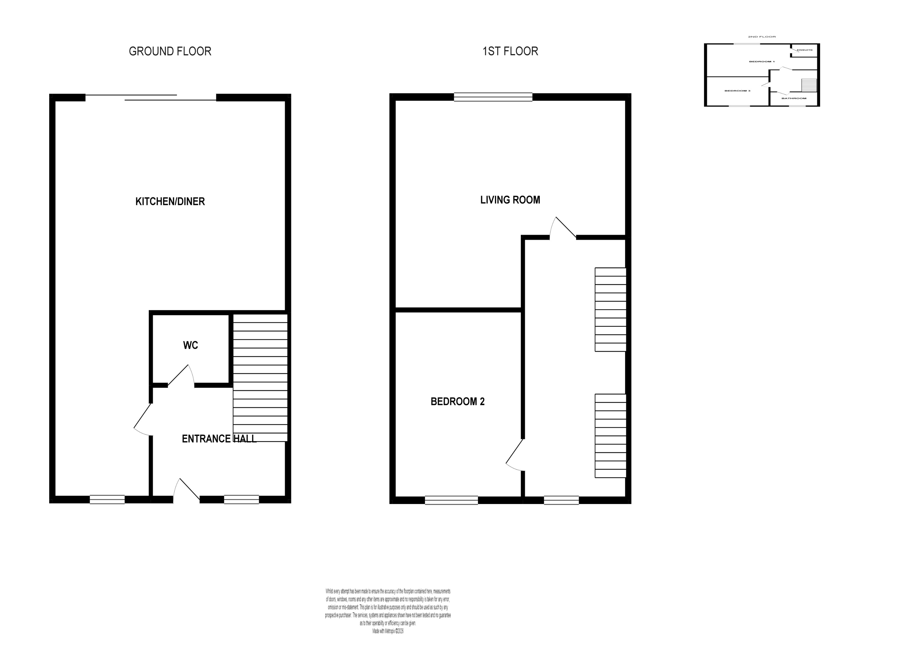
A well-presented three-bedroom townhouse situated on the desirable White Swan Close in Killingworth, offering spacious accommodation arranged over three floors and ideally suited to modern family living.

Upon entering the property, you are welcomed by a bright entrance hallway, with the convenience of a downstairs WC located just off the hall. The ground floor features a generous kitchen/diner, thoughtfully designed with ample worktop space and plenty of room for dining. Sliding doors extending the length of the room allow natural light to flood the space and provide direct access to the rear garden, creating a light and airy atmosphere throughout.

The first floor hosts a spacious living area, enhanced by a large window that further brightens the room, making it an ideal space to relax and unwind. Also located on this floor is the second bedroom, which comfortably accommodates a double bed.

On the second floor, the master bedroom offers a spacious retreat, complete with built-in wardrobes and the added benefit of a modern en-suite shower room. The third bedroom is also situated on this floor and is suitable for a single bed, making it ideal as a child’s room, nursery or home office. The family bathroom is conveniently positioned to serve this level.

Externally, the property benefits from a private driveway providing off-street parking and a private rear garden, perfect for outdoor enjoyment.

White Swan Close is ideally positioned within Killingworth, offering easy access to a range of local amenities, schools, shops and transport links. The property is also well placed for commuting to nearby centres including Newcastle upon Tyne and North Shields, making it an excellent choice for both families and professionals alike.   EPC rating: C. Council tax band: C, Domestic rates: £2076.84, Tenure: Freehold,

Additional Information
EPC Rating:
C
Tenure:
Freehold
Council Tax Band:
C
Rooms
Kitchen/Diner
4.39m x 7.74m (14'5" x 25'5")
Living Room
3.96m x 4.23m (13'0" x 13'11")
Bedroom 2
3.17m x 2.37m (10'5" x 7'9")
Bedroom 1
3.06m x 2.44m (10'0" x 8'0")
Bedroom 3
2.39m x 4.07m (7'10" x 13'4")
Bathroom
1.64m x 1.88m (5'5" x 6'2")

Mortgage calculator

Calculate Your Stamp Duty
£
Results
Stamp Duty To Pay:
Effective Rate:
Tax Band % Taxable Sum Tax

White Swan Close, Killingworth, Newcastle upon Tyne, NE12

Struggling to find a property? Get in touch and we'll help you find your ideal property.

Interested in viewing this property?
Book a Viewing
Main menu