3 bedroom Terraced House For Sale

Tolye Road, Norwich, NR5

£250,000 | Available

3 Bedrooms
2 Bathrooms

Norwich

7 Broadland Court, 
Wherry Road, 
Norwich, 
NR1 1UN, 
England
Standout Features

Property Description

MODERN THREE STOREY TOWNHOUSE OFFERED AS A BUY2LET INVESTMENT. This well presented, three bedroom property is currently tenanted and has a potential gross rental income of £1450pm.

WELL PRESENTED, THREE BEDROOM, THREE STOREY TOWNHOUSE located to the west of Norwich close by to the University of East Anglia and the Norfolk and Norwich University Hospital.

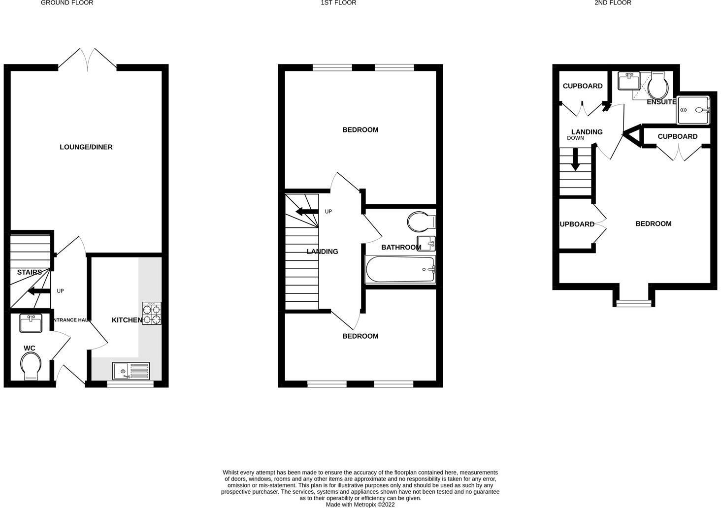
Accommodation comprising ENTRANCE HALL, LOUNGE/DINER, KITCHEN and WC to the ground floor. On the first floor there are TWO BEDROOMS and a BATHROOM off landing and to the second floor there is another BEDROOM with EN-SUITE SHOWER ROOM. Outside there is an ENCLOSED LAWNED REAR GARDEN backing on to a single GARAGE with parking in front.


Location - Tolye Road is situated close by to the University of East Anglia Norfolk and Norwich University Hospital along with other amenities that includes schooling, popular local shops, pubs, restaurants and supermarkets with great public transport links to and from the City centre. There is ease of access to the A47 southern bypass.

Accommodation Comprises - Front door to:

Entrance Hall - Doors to lounge/diner, kitchen, WC and stairs to first floor.

Lounge/Diner - 4.82 x 4.07 (15'9" x 13'4") - French doors, two radiators.

Kitchen - 3.33 x 1.97 (10'11" x 6'5") - Fitted wall and base units with worktops over, four ring gas hob with extractor over, fitted oven, space for fridge/freezer and washing machine, double glazed window.

Wc - Low level WC, hand wash basin, radiator, frosted double glazed window.

First Floor Landing - Doors to two bedrooms, bathroom and stairs to second floor.

Bedroom Two - 4.07 x 3.47 (13'4" x 11'4") - Two double glazed windows, radiator.

Bedroom Three - 4.07 x 2.51 (13'4" x 8'2") - Two double glazed windows, radiator.

Bathroom - 2.07 x 1.96 (6'9" x 6'5") - Panelled bath with shower over, low level WC, hand wash basin, radiator, extractor fan.

Second Floor Landing - Door to:

Bedroom One - 5.02 x 3.01 (16'5" x 9'10") - Double-glazed window, radiator, built in wardrobe.

En-Suite - 2.59 x 1.97 (8'5" x 6'5") - Shower cubicle, low level WC, hand wash basin, radiator, Velux window.

Outside - Lawned garden enclosed by timber fencing backing onto a single garage with parking in front.

Local Authority - Norwich City Council, Tax Band C.

Tenure - Freehold

EPC rating: C. Council tax band: C, Tenure: Freehold,
Additional Information
EPC Rating:
C
Tenure:
Freehold
Council Tax Band:
C

Mortgage calculator

Calculate Your Stamp Duty
£
Results
Stamp Duty To Pay:
Effective Rate:
Tax Band % Taxable Sum Tax

Tolye Road, Norwich, NR5

Struggling to find a property? Get in touch and we'll help you find your ideal property.

Interested in viewing this property?
Book a Viewing
Main menu