3 bedroom Terraced House Sold STC

Darlington Street East, Wigan, WN1

OIRO £140,000 | Sold STC

3 Bedrooms
1 Bathrooms
2 Receptions

Wigan

55-57 Mesnes Street, 
Wigan, 
WN1 1QX, 
England
Standout Features

Property Description

This three-bedroom terraced house in Wigan is offered for sale and provides a practical layout suited to first-time buyers, families and investors. Neutrally decorated throughout, the property includes two reception rooms, one of which features a fireplace, creating a defined living area, while the second reception room is well suited as a dining room. The kitchen benefits from natural light, enhancing the usability of the space.

Upstairs, there are two double bedrooms and one single bedroom, offering flexibility for sleeping arrangements or a home office. The bathroom includes a rain shower. The property has an EPC rating of D and falls within Council Tax Band A.

The house is well positioned for Wigan town centre, which offers a range of shops, supermarkets, cafés and everyday amenities. Green spaces and nearby parks, including Mesnes Park and Haigh Woodland Park, provide walking and cycling routes within easy reach, as well as play areas and open spaces.

Public transport links are a key advantage, with both Wigan North Western and Wigan Wallgate stations accessible from the area. From Wigan North Western, services run to Manchester and London, with journey times to Manchester typically around 35–40 minutes. Wigan Wallgate provides regular trains to Southport and Manchester. Local bus services further connect surrounding neighbourhoods and retail areas.

Nearby schools offer options for primary and secondary education, making this location practical for families seeking access to local schooling, green spaces and transport connections. EPC rating: D. Council tax band: A, Tenure: Leasehold,

Additional Information
EPC Rating:
D
Tenure:
Leasehold
Council Tax Band:
A
Rooms
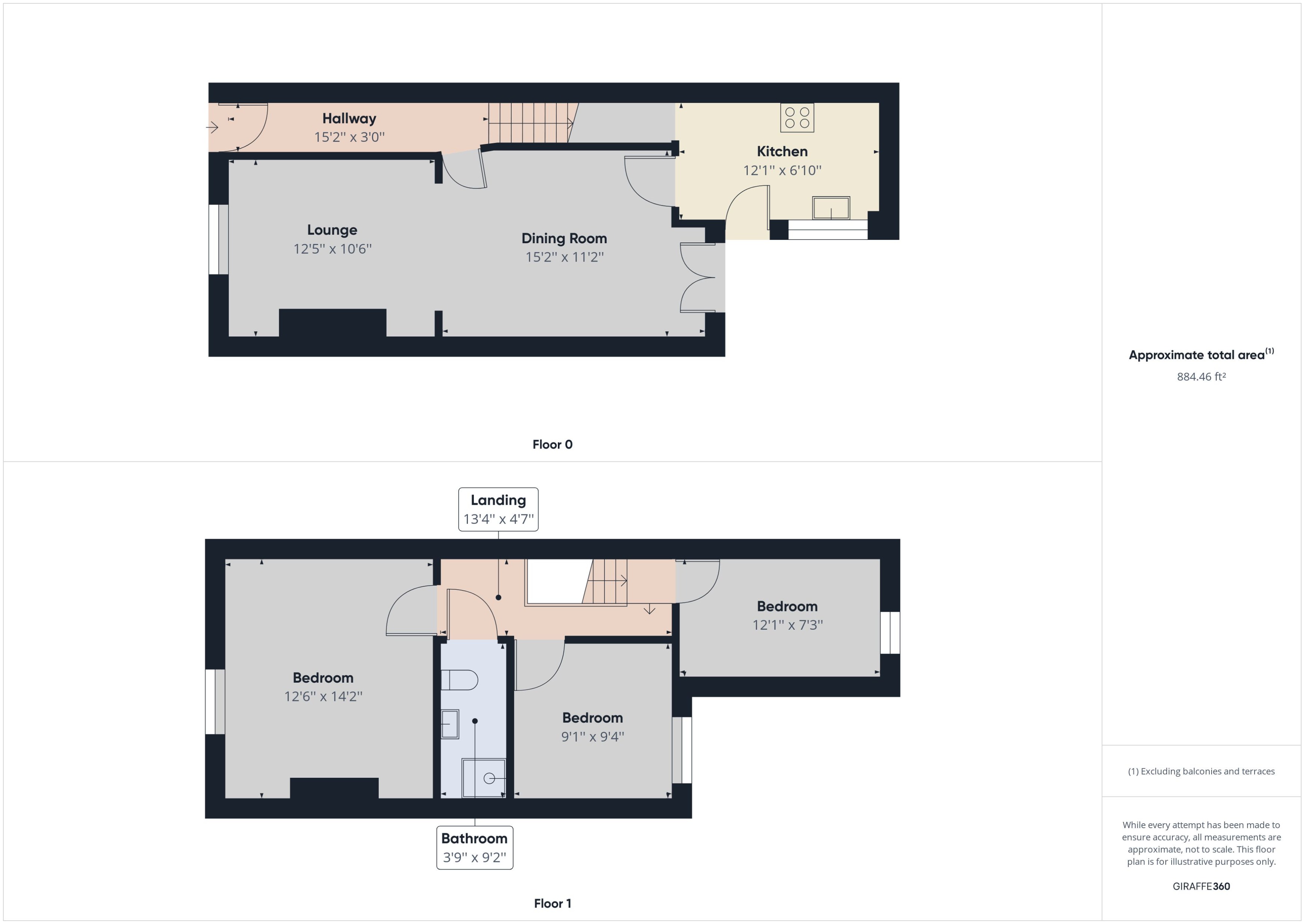
ENTRANCE HALLWAY

UPVC front access door, ceiling light point, stairs leading to the first floor and radiator.

LOUNGE

UPVC double glazed window to the front aspect, coving, ceiling light point, radiator, TV point, telephone point and open through to the dining room.

DINING ROOM

UPVC double glazed French doors leading into the garden, ceiling light point and radiator.

FITTED KITCHEN

UPVC double glazed window to the side aspect, side access door, range of fitted wall and base units with complementary work surfaces, electric hob, electric oven, extractor fan and light, tiled splash backs, tiled flooring, radiator and ceiling light point.

LANDING

Loft access an ceiling light point.

BEDROOM ONE

UPVC double glazed window to the front aspect, ceiling light point and radiator.

BEDROOM TWO

UPVC double glazed window to the rear aspect, ceiling light point and radiator.

BEDROOM THREE

UPVC double glazed window to the rear aspect, ceiling light point and radiator.

SHOWER ROOM

Shower cubicle with electric shower, WC, hand wash basin, tiled splash backs, tiled flooring, towel radiator and ceiling spot lights.

EXTERNALLY

To the rear there is a yard which is paved and has a gated access.

TENURE

Leasehold 999 Years from 12th May 1892. Ground rent is approximately £20 per annum.

COUNCIL TAX BAND A
EPC RATING D
DISCLAIMER

These details are intended to give a fair description only and their accuracy cannot be guaranteed nor are any floor plans (if included) exactly to scale. These details do not constitute part of any contract and are not to be relied upon as statements of representation or fact. Intended purchasers are advised to recheck all measurements before committing to any expense and to verify the legal title of the property from their legal representative. Any contents shown in the images contained within these particulars will not be included in the sale unless otherwise stated or following individual negotiations with the vendor. Northwood have not tested any apparatus, equipment, fixtures, or services so cannot confirm that they are in working order and the property is sold on this basis.

Some of the photographs included in this brochure were captured prior to tenancy.


Mortgage calculator

Calculate Your Stamp Duty
£
Results
Stamp Duty To Pay:
Effective Rate:
Tax Band % Taxable Sum Tax

Darlington Street East, Wigan, WN1

Struggling to find a property? Get in touch and we'll help you find your ideal property.

Interested in viewing this property?
Book a Viewing
Main menu