3 bedroom Semi-detached house For Sale

Stockbrook Road, City Centre, Derby, DE22

£199,950 | For Sale

3 Bedrooms
1 Bathrooms
2 Receptions

Derby

Canal Side Farm Office Canal Side Farm, Stenson Road, 
Stenson, 
Derby, 
DE73 7HL, 
England
Standout Features

Property Description

Situated within easy reach of Derby City Centre and the Royal Derby Hospital, this well-proportioned three bedroom semi-detached home offers spacious accommodation across two floors and would make an ideal purchase for first time buyers, families or investors.

The property features two reception rooms providing flexible living space, ideal for both relaxing and entertaining. The kitchen is fitted with a range of units and includes space for freestanding appliances, creating a practical area for everyday living.

To the first floor there are three bedrooms, including two well-sized double bedrooms and a further single bedroom which could also be used as a nursery, dressing room or home office. The family bathroom is fitted with a three-piece suite with shower over the bath.

Outside, the property benefits from a rear garden mainly laid to lawn with a patio seating area and greenhouse, providing an ideal outdoor space to enjoy during the warmer months. Parking is available on street to the front.

Located in a convenient residential area with good access to Derby City Centre, local amenities, transport links and the Royal Derby Hospital, this property presents a fantastic opportunity for a range of buyers. EPC rating: D. Council tax band: A, Domestic rates: £1463.83, Tenure: Freehold,

Additional Information
EPC Rating:
D
Tenure:
Freehold
Council Tax Band:
A
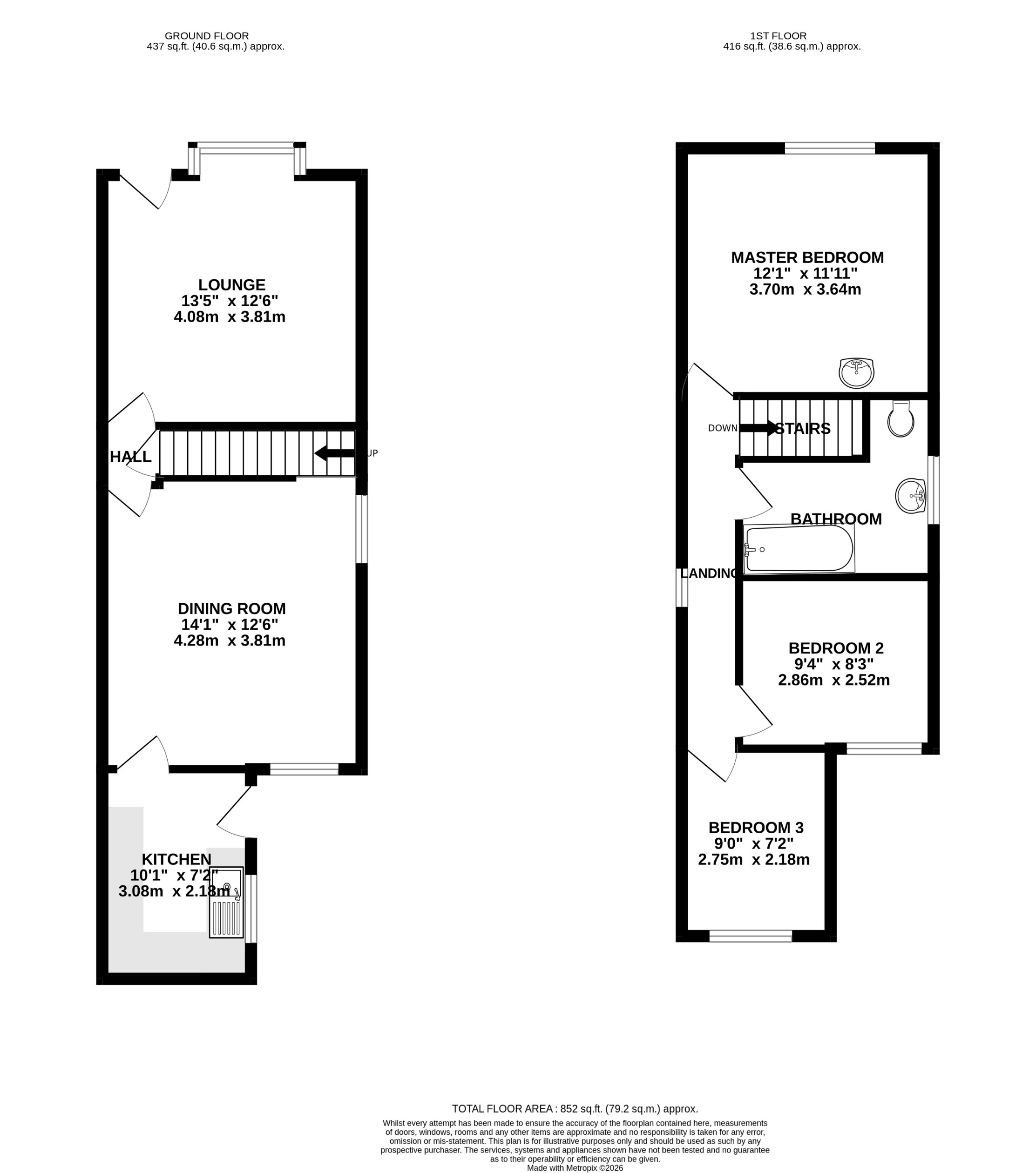
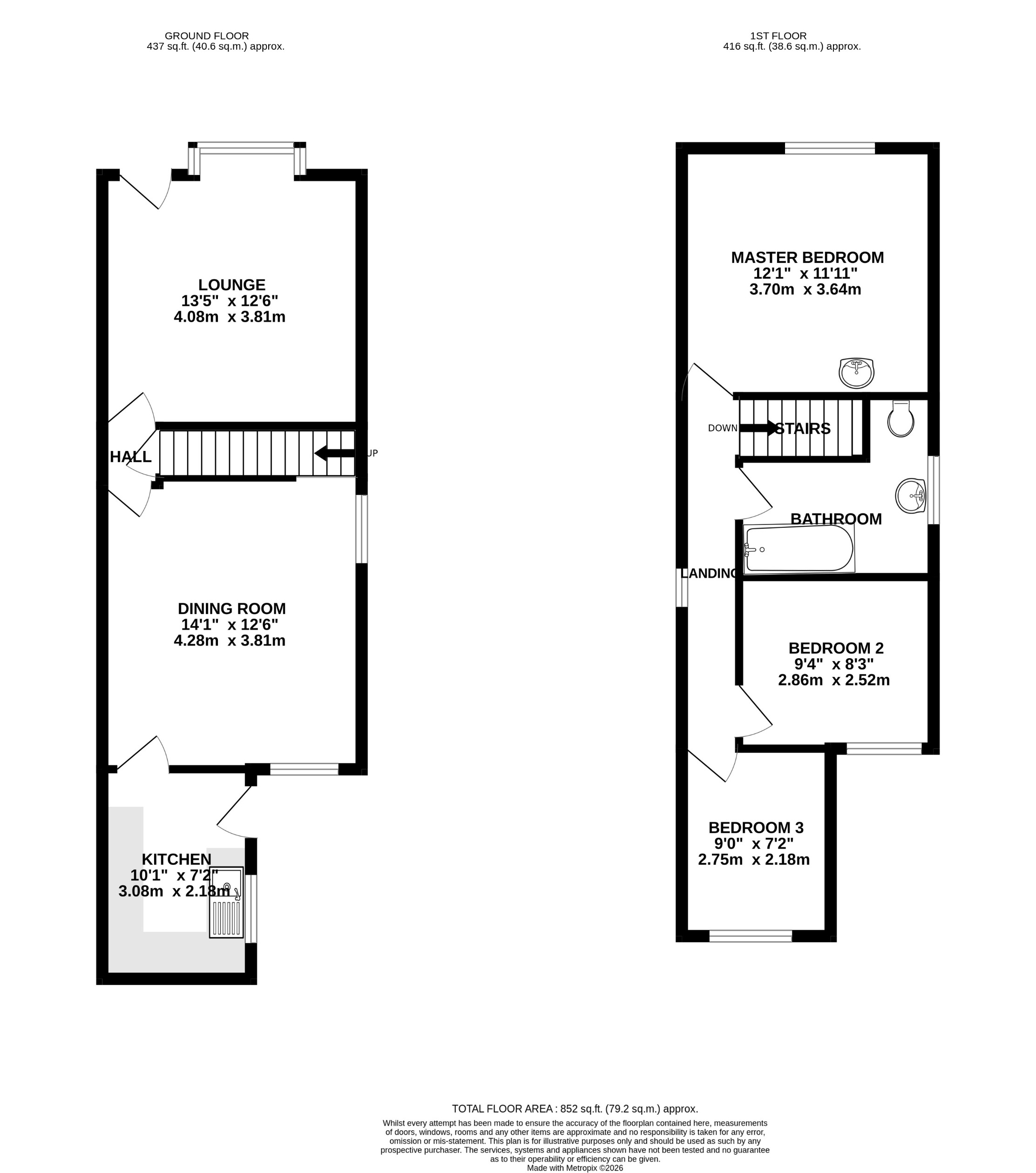
Rooms
Externally

The property is set back from the road behind a small forecourt garden with a pathway leading to the front entrance. On-street parking is available to the front of the property.

Lounge

The property opens directly into the lounge, a well-proportioned reception room with a large front-facing bay window allowing plenty of natural light. This comfortable living space offers ample room for seating furniture and provides access to the staircase leading to the first floor.

Dining Room

A spacious second reception room located to the rear of the property, ideal for family dining or entertaining. There is plenty of space for a dining table and additional furniture, with access through to the kitchen and views towards the rear garden.

Kitchen

Fitted with a range of wall and base units providing useful storage and worktop space, the kitchen includes space for freestanding appliances. A door leads out to the rear garden.

Landing

The first-floor landing provides access to all three bedrooms and the family bathroom.

Bedroom One

A generous double bedroom located at the front of the property with ample space for bedroom furniture.

Bedroom Two

A good-sized second bedroom overlooking the rear of the property, suitable as a double bedroom, guest room or home office.

Bedroom Three

A good sized bedroom which would also work well as a nursery, study or dressing room.

Bathroom

The bathroom is fitted with a three-piece suite comprising a bath with shower over, wash hand basin and WC.

Rear Garden

To the rear of the property there is an enclosed garden mainly laid to lawn with a patio seating area and greenhouse, providing an ideal outdoor space for relaxing or gardening.

Disclaimer

In line with AML regulations, Northwood (Derbyshire) Ltd must verify all purchasers’ identities. The cost is £35 + VAT (£42 inc. VAT) per person, payable to our verification partner before a sale can be agreed. These particulars are issued in good faith but do not form part of any offer or contract. Details should be independently verified. Measurements are approximate, and services or appliances have not been tested. Buyers should make their own enquiries or surveys. Please contact us for clarification if travelling some distance to view.


Mortgage calculator

Calculate Your Stamp Duty
£
Results
Stamp Duty To Pay:
Effective Rate:
Tax Band % Taxable Sum Tax

Stockbrook Road, City Centre, Derby, DE22

Struggling to find a property? Get in touch and we'll help you find your ideal property.

Interested in viewing this property?
Book a Viewing
Main menu