3 bedroom Semi-detached house For Sale

Buxton Road, Macclesfield, SK11

£350,000 | For Sale

3 Bedrooms
1 Bathrooms
2 Receptions

Macclesfield

22 Church Street, 
Macclesfield, 
SK11 6LB, 
England
Standout Features

Property Description

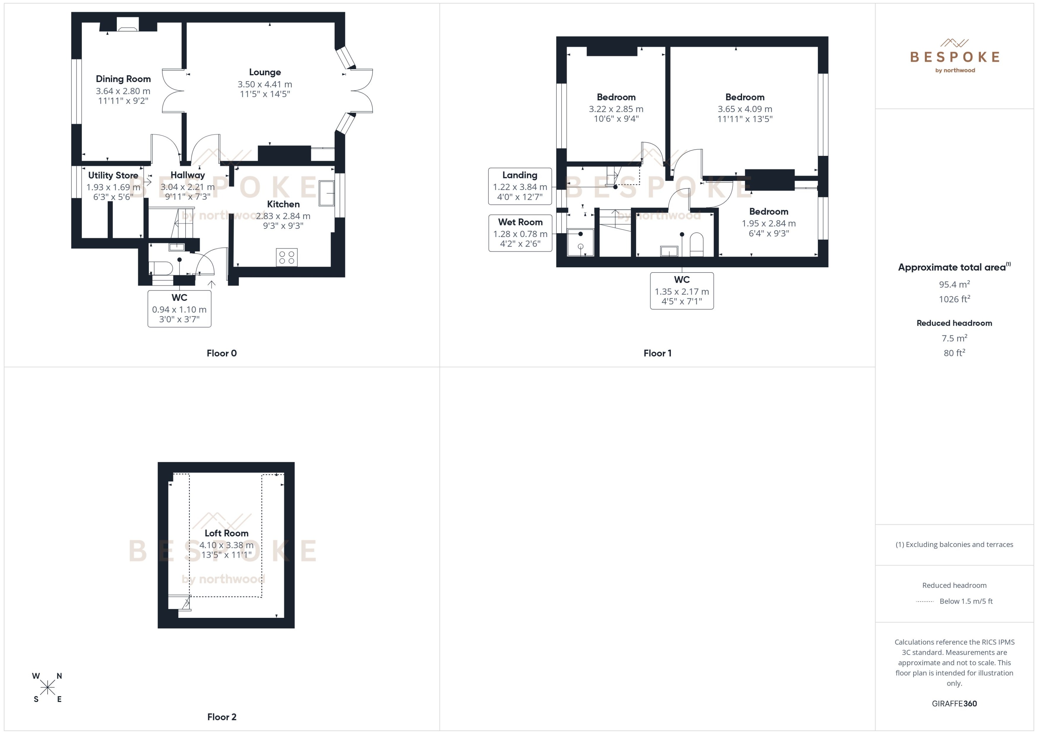
This is a well laid out home with a practical flow and a number of recent improvements. The ground floor is arranged around two reception rooms, with the lounge opening directly onto the garden through French doors. The kitchen has been recently updated and sits to the front, with a separate utility store and ground floor WC adding useful everyday function.

Upstairs, there are two double bedrooms, both with original style fireplaces, along with a separate WC and a fully tiled wet room. A loft room provides additional flexible space for storage or occasional use.

Outside, the property sits on a secure and generous plot with off road parking and EV charging. The position on Buxton Road gives straightforward access into Macclesfield and towards the Peak District. EPC rating: Unknown. Council tax band: C, Tenure: Freehold,

Additional Information
Tenure:
Freehold
Council Tax Band:
C
Rooms
Hallway

Composite part glazed entrance door, laminate flooring, pendant lighting and central heating radiator.

Kitchen

Recently fitted range of units with square edge worktops, gas hob with extractor, electric oven, composite one and a half bowl sink and drainer, space for fridge and dishwasher, spot lighting and UPVC window to the front.

Lounge

Laminate flooring, picture rail, central heating radiator and LED lighting. UPVC double glazed French doors with side windows open onto the garden. Built in wooden storage unit.

Dining Room

Cast iron fireplace with surround, laminate flooring, picture rail, central heating radiator and UPVC double glazed window.

Utility Store

Tiled flooring, pendant lighting, full height UPVC double glazing and space for a stackable washing machine and dryer.

WC

Tiled flooring, low level WC, wash hand basin, UPVC courtesy window and pendant lighting.

Landing

Fitted carpet, pendant lighting, UPVC double glazed window and access to all rooms.

Bedroom One

Double room with cast iron feature fireplace, picture rail, UPVC double glazed window, central heating radiator and pendant lighting.

Bedroom Two

Double room with cast iron feature fireplace, picture rail, UPVC double glazed window, central heating radiator and pendant lighting.

First Floor WC

Low level WC, wash hand basin set within a vanity unit, laminate flooring, storage shelving and spot lighting.

Wet Room

Fully tiled wet room with shower area, spot lighting, extractor fan and UPVC courtesy window.

Loft Room

Accessed via fixed wooden stair ladder, with fitted carpet, Velux window and eaves storage.

Location

Buxton Road is a well-connected position with easy access into Macclesfield town centre, offering a range of shops, supermarkets and everyday amenities. The area is also well placed for road links towards Stockport and Manchester, while being within reach of the Peak District for open countryside. Local schools and regular bus routes are close by, making it a practical choice for day to day living.


Mortgage calculator

Calculate Your Stamp Duty
£
Results
Stamp Duty To Pay:
Effective Rate:
Tax Band % Taxable Sum Tax

Buxton Road, Macclesfield, SK11

Struggling to find a property? Get in touch and we'll help you find your ideal property.

Interested in viewing this property?
Book a Viewing
Main menu