3 bedroom Semi-detached house For Sale

Belle Vue Terrace, Sandbach, CW11

£350,000 | For Sale

3 Bedrooms
1 Bathrooms
2 Receptions

Crewe & Sandbach

9 Hightown, 
Sandbach, 
CW11 1AD, 
England
Property Description

If you are looking for a period property briming with character then have we got the property for you!  Welcome to Belle Vue Villas, dating back from 1895 this beautiful three bedroom semi detached home offers a lovely blend of period features combined with modern conveniences, spacious accommodation and a large rear garden. The cherry on the cake being its close proximity to Sandbach centre.

This impressive home benefits from a range of characterful features such as high ceilings, picture rails, stripped wood doors and beautiful fireplaces.

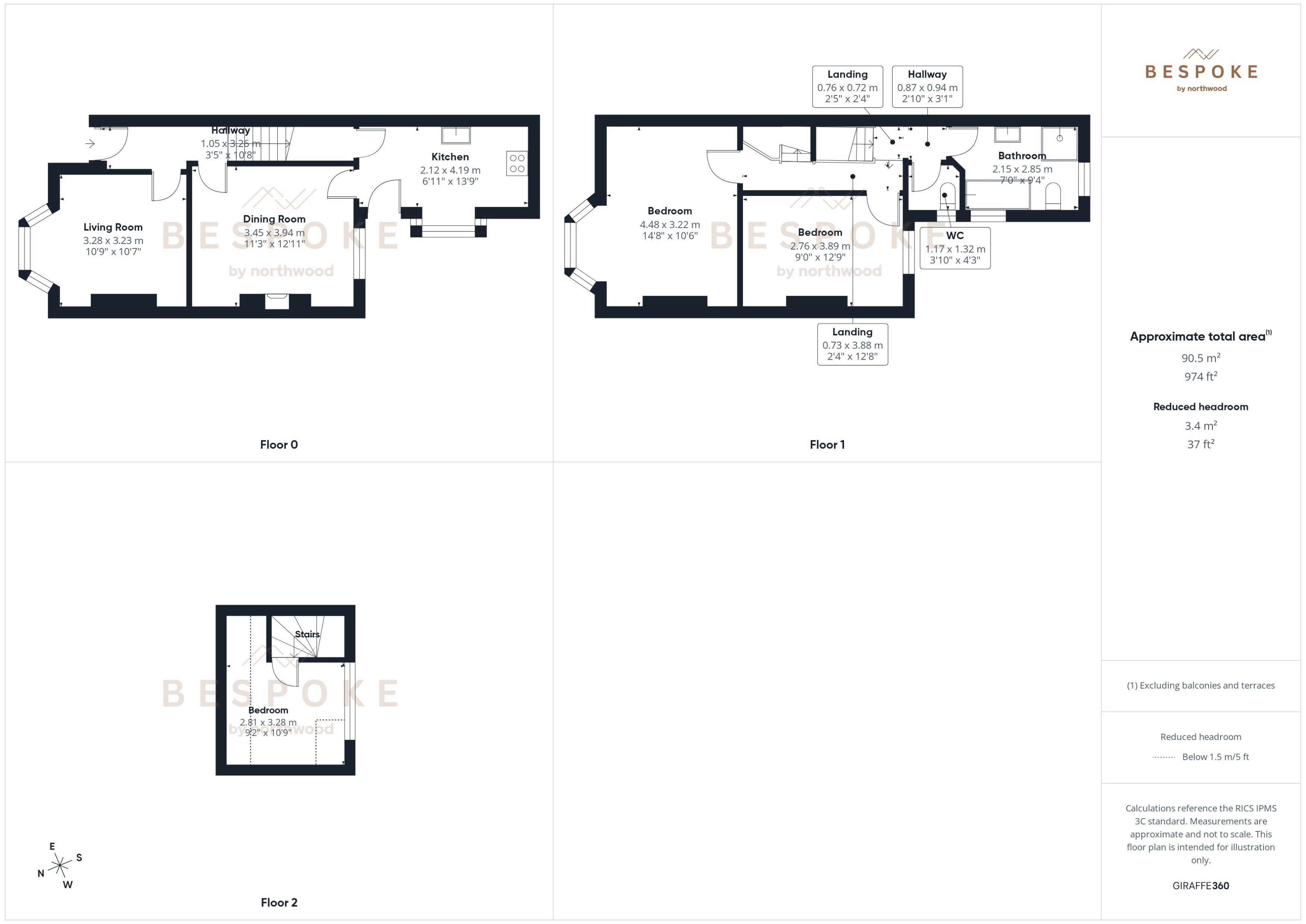
As soon as you enter the property through the exquisite original door with feature stained glass window you are greeted with a beautiful mosaic tiled floor. The cosy lounge to the front benefits from a large bay window allowing ample light and an attractive cast iron fireplace providing a focal point. This room is the perfect retreat for relaxing with a book or watching TV.

At the heart of the home is the rear dining room with terracotta floor tiling and wooden burning stove inset into a brick fireplace. With the kitchen directly accessible this makes the perfect room for entertaining guests or catching up with the family over an evening meal. The cottage style kitchen with ceramic sink and breakfast area set into box bay window provides a great place for morning coffee or a peaceful cup of tea.

To the first floor the character continues with wooden balustrade to the landing and feature fireplaces to both double bedrooms. The master bedroom benefits from a large bay window to the front allowing light to flood the room and large fitted wardrobes provide plenty of storage space.  The spacious bathroom has attractive subway tiling and period bathroom suite with roll top bath and free standing taps and separate shower cubicle.  There is also an extremely useful separate w.c.

From the landing a staircase leads to the second floor with a further double bedroom benefiting from eaves storage space.

Externally the front of the property possesses kerb appeal via a low maintenance open plan decorative block paving/slate frontage. Whilst the private rear south facing garden has a large patio, lawned area with storage shed at the end of the garden.

We love this home due to the abundance of original features creating a beautiful characteristic home yet with all the practical features needed for modern day living.

Early viewing is highly recommended to fully appreciate the beauty of this home. EPC rating: E. Council tax band: X, Tenure: Freehold,

Additional Information
EPC Rating:
E
Tenure:
Freehold

Mortgage calculator

Calculate Your Stamp Duty
£
Results
Stamp Duty To Pay:
Effective Rate:
Tax Band % Taxable Sum Tax

Belle Vue Terrace, Sandbach, CW11

Struggling to find a property? Get in touch and we'll help you find your ideal property.

Interested in viewing this property?
Book a Viewing
Main menu