3 bedroom Link detached house For Sale

Perch Close, Singleton, Ashford, TN23

Guide Price £360,000 | For Sale

3 Bedrooms
2 Bathrooms
1 Receptions

Ashford

4 Victoria Road, 
Ashford, 
Kent, 
TN23 7AJ, 
England
Standout Features

Property Description

*Guide Price - £360,000-£370,000*

Beautifully Presented Three Bedroom Link Detached Home, Garage, Parking & EPC B ** Being Sold Chain Free **

This superbly presented three bedroom link detached home sits in a quiet cul de sac within one of Singleton’s most desirable residential pockets. Offering 957 sq ft of well arranged accommodation, a garage, driveway parking and an enclosed rear garden, it is an ideal choice for families, professionals and anyone seeking a move in ready home in a convenient location.

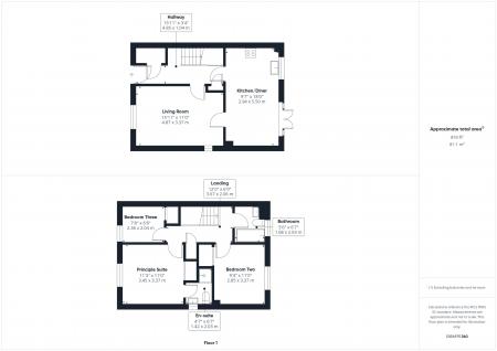
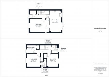
Ground Floor

The front door opens into a welcoming hallway with stairs rising to the first floor, a useful cupboard beneath and an adjacent cloakroom.
The spacious dual aspect lounge enjoys excellent natural light with windows to the front and side. A door leads through to the impressive kitchen/dining room, fitted with a fine range of wall and base units, generous work surfaces, an inset sink, four ring gas hob with oven below and space for further appliances. A window and double doors open directly to the rear garden, creating a bright and sociable everyday living space.

Measurements:

  • Hallway: 15'11" × 3'4" (4.85 × 1.04 m)
  • Living Room: 15'11" × 11'0" (4.87 × 3.37 m)
  • Kitchen/Diner: 9'7" × 18'0" (2.94 × 5.50 m)
First Floor

The landing includes a built in cupboard and doors to all bedrooms and the family bathroom.
The principle bedroom features a built in wardrobe, a front facing window and an en suite shower room comprising a shower cubicle, WC and wash hand basin.
Bedroom two also benefits from a built in wardrobe and overlooks the rear garden, while bedroom three faces the front and provides a comfortable single room or an ideal work from home space.
The family bathroom is fitted with a white suite including a panelled bath with shower attachment, WC and wash hand basin.

Measurements:

  • Landing: 12'0" × 6'9" (3.67 × 2.06 m)
  • Principal Bedroom: 11'3" × 11'0" (3.45 × 3.37 m)
    • En suite: 4'7" × 6'7" (1.42 × 2.03 m)
  • Bedroom Two: 9'4" × 11'0" (2.85 × 3.37 m)
  • Bedroom Three: 7'8" × 6'8" (2.36 × 2.04 m)
  • Bathroom: 5'6" × 6'7" (1.68 × 2.03 m)
 Outside

The property is approached via a driveway leading to the garage, providing private off road parking.
The rear garden is fully enclosed by fencing and laid mainly to lawn with a patio area — a safe, manageable and sunny outdoor space.

 Key Features

  • Cul de sac location
  • Superbly presented throughout
  • Three good sized bedrooms
  • En suite shower room
  • Double glazing
  • Gas central heating
  • Enclosed rear garden
  • Garage and driveway parking
  • EPC B
  • Sought after Singleton position
Property Overview :Location :

Perch Close is set within a peaceful residential enclave of Singleton, one of Ashford’s most desirable and well established neighbourhoods. Known for its strong sense of community, green surroundings and excellent amenities, Singleton offers a calm, village like atmosphere while remaining exceptionally well connected.

Residents enjoy convenient access to the Singleton Centre, which provides a post office, pharmacy, GP surgery, pub and local shops ideal for everyday essentials. The highly regarded Great Chart Primary School is within walking distance, making the area particularly appealing to young families. For those who appreciate nature, Singleton Lake and the Environment Centre offer scenic walking routes, wildlife rich green spaces and a tranquil escape from busy life.

Ashford itself has grown into one of Kent’s most dynamic and well?connected towns. The award winning Ashford Designer Outlet, designed by Lord Richard Rogers, offers over 100 premium brands, restaurants and seasonal events. Ashford International Station provides high?speed rail services to London St Pancras in under 40 minutes, while the M20 offers fast access to the coast, the capital and wider Kent.

Recreation options are plentiful, with leisure centres, parks, golf courses and countryside trails all close by. The surrounding area offers a wealth of destinations to explore, including:

  • Tenterden, a charming market town with independent shops, vineyards and a heritage railway
  • Canterbury, a historic cathedral city rich in culture, dining and boutique shopping
  • The Kent coast, with Hythe, Dymchurch and Camber Sands offering beaches, promenades and waterside walks
This blend of tranquillity, convenience and connectivity makes Manorfield an exceptional place to call home.

Services : All main services connected.

Local Authority : Ashford Borough Council

Council Tax Band ( E )

Method of Sale :

This property is freehold and is offered for sale with vacant possession upon completion.

Viewings : In the first instance please contact a member of the sales team to arrange an appointment.

MONEY LAUNDERING REGULATIONS 

Agents are required by law to conduct anti-money laundering checks on all those buying a property.  We outsource the initial checks to a partner supplier HIPLA who will contact you once you have had an offer accepted on a property you wish to buy. The cost of these checks is £30.00 inclusive VAT per buyer where this is a non refundable fee. These charges cover the cost of obtaining relevant data and any manual checks and monitoring which may be required. This fee will be required to be paid by you in advance of the office issuing a memorandum of sale on the property you would like to buy.

IMPORTANT NOTICE 1. These particulars have been prepared in good faith as a general guide, they are not exhaustive and include information provided to us by other parties including the seller, not all of which will have been verified by us. 2. We have not carried out a detailed or structural survey; we have not tested any services, appliances or fittings. Measurements, floor plans, orientation and distances are given as approximate only and should not be relied on. 3. The photographs are not necessarily comprehensive or current, aspects may have changed since the photographs were taken. No assumption should be made that any contents are included in the sale. 4. We have not checked that the property has all necessary planning, building regulation approval, statutory or regulatory permissions or consents. Any reference to any alterations or use of any part of the property does not mean that necessary planning, building regulations, or other consent has been obtained. 5. Prospective purchasers should satisfy themselves by inspection, searches, enquiries, surveys, and professional advice about all relevant aspects of the property. 6. These particulars do not form part of any offer or contract and must not be relied upon as statements or representations of fact; we have no authority to make or give any representation or warranties in relation to the property. If these are required, you should include their terms in any contract between you and the seller.

 

. EPC rating: B. Council tax band: E, Tenure: Freehold,

Additional Information
EPC Rating:
B
Tenure:
Freehold
Council Tax Band:
E

Mortgage calculator

Calculate Your Stamp Duty
£
Results
Stamp Duty To Pay:
Effective Rate:
Tax Band % Taxable Sum Tax

Perch Close, Singleton, Ashford, TN23

Struggling to find a property? Get in touch and we'll help you find your ideal property.

Interested in viewing this property?
Book a Viewing
Main menu