3 bedroom Detached house Sold STC

Westwood Drive, Sale, M33

Offers over £550,000 | Sold STC

3 Bedrooms
1 Bathrooms

South Manchester

43 - 45 Cross Street, 
Sale, 
M33 7FT, 
England
Standout Features

Property Description

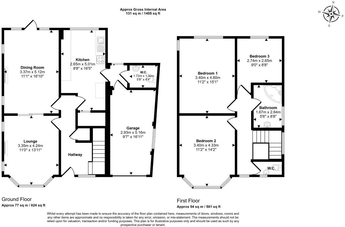
Located in the sought-after Brooklands area of Sale (M33 3QZ), this spacious three-bedroom detached home offers approximately 131 sqm (1,405 sq ft) of accommodation over two floors. The ground floor comprises a welcoming hallway, bay-fronted lounge, separate dining room, fitted kitchen, and a ground-floor WC. Upstairs, there are three bedrooms, a family bathroom, and an additional WC.

Externally, the property benefits from front and rear gardens, an integral garage, and off-street parking. Offering a generous footprint and excellent layout, the home provides strong potential for side, rear or loft extensions (subject to planning).

Situated on a quiet residential road, it is close to local shops, well-regarded schools, green spaces such as Walton Park. Ideal for buyers seeking a property with space, flexibility, and the opportunity to update to their own style. EPC rating: D. Council tax band: X, Tenure: Freehold,

Additional Information
EPC Rating:
D
Tenure:
Freehold

Mortgage calculator

Calculate Your Stamp Duty
£
Results
Stamp Duty To Pay:
Effective Rate:
Tax Band % Taxable Sum Tax

Westwood Drive, Sale, M33

Struggling to find a property? Get in touch and we'll help you find your ideal property.

Interested in viewing this property?
Book a Viewing
Main menu