2 bedroom Terraced House For Sale

Watson Street, City Centre, Derby, DE1

£179,999 | For Sale

2 Bedrooms
1 Bathrooms
1 Receptions

Derby

Canal Side Farm Office Canal Side Farm, Stenson Road, 
Stenson, 
Derby, 
DE73 7HL, 
England
Standout Features

Property Description

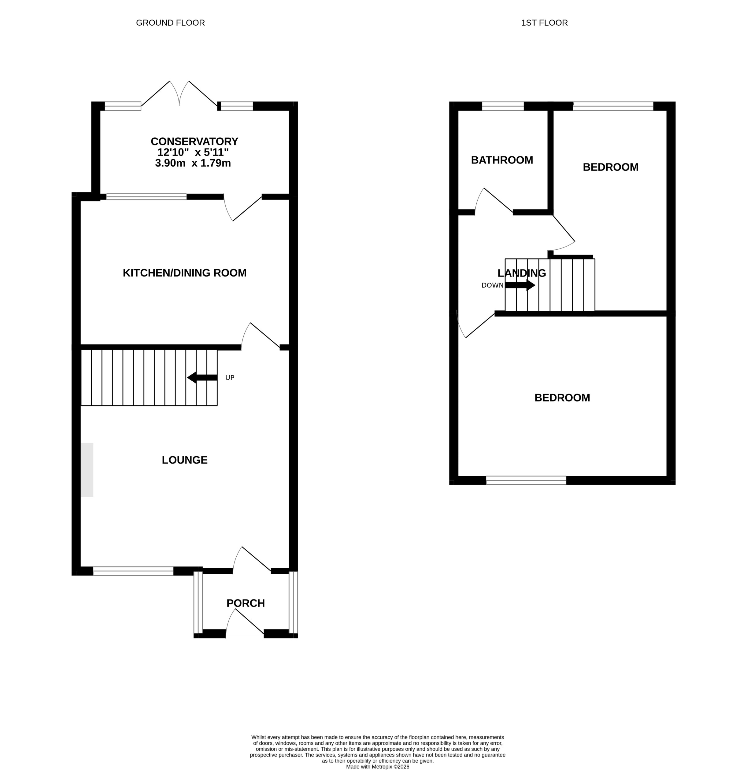
Located within easy walking distance of Derby City Centre, this well-presented two bedroom mid-terrace home offers an excellent opportunity for first-time buyers, investors or those seeking convenient city living.

The property is entered via a useful porch leading into a welcoming lounge featuring a fireplace as a focal point. To the rear, the modern fitted kitchen provides a range of units and space for appliances, with access through to a bright conservatory overlooking the garden.

Upstairs, the property offers two bedrooms, including a generous double bedroom and a second bedroom ideal as a nursery, office or guest room. The bathroom is fitted with a three-piece suite with shower over bath.

Externally, the home benefits from a private enclosed rear garden, providing outdoor space rarely found so close to the city centre. On-street parking is available to the front.

With excellent access to the A38, A52 and A50, this is a fantastic home offering convenience, practicality and strong long-term appeal. EPC rating: D. Council tax band: A, Tenure: Freehold,

Additional Information
Tenure:
Freehold
Council Tax Band:
A
Rooms
Porch

Useful entrance space providing storage and leading into the main living accommodation

Lounge

Comfortable front living room with feature fireplace and space for seating and dining furniture.

Kitchen

Modern fitted kitchen with a range of wall and base units, work surfaces and space for appliances. Access to conservatory.

Conservatory

Bright additional reception space overlooking the rear garden with direct access outside.

Bedroom One

Generous double bedroom positioned to the front of the property.

Bedroom Two

Second bedroom ideal as a single bedroom, nursery or home office.

Bathroom

Three-piece suite comprising bath with shower over, wash basin and WC.

Outside

Private enclosed rear garden. On-street parking available.

Disclaimer

In line with AML regulations, Northwood (Derbyshire) Ltd must verify all purchasers’ identities. The cost is £35 + VAT (£42 inc. VAT) per person, payable to our verification partner before a sale can be agreed. These particulars are issued in good faith but do not form part of any offer or contract. Details should be independently verified. Measurements are approximate, and services or appliances have not been tested. Buyers should make their own enquiries or surveys. Please contact us for clarification if travelling some distance to view.


Mortgage calculator

Calculate Your Stamp Duty
£
Results
Stamp Duty To Pay:
Effective Rate:
Tax Band % Taxable Sum Tax

Watson Street, City Centre, Derby, DE1

Struggling to find a property? Get in touch and we'll help you find your ideal property.

Interested in viewing this property?
Book a Viewing
Main menu