2 bedroom Terraced House For Sale

Glastonbury Close, Belmont, Hereford, HR2

£190,000 | For Sale

2 Bedrooms
1 Bathrooms
2 Receptions

Hereford & Ross-on-Wye

4 St Nicholas Street, 
Hereford, 
HR4 0BG, 
England
31 Gloucester Road, 
Ross-on-Wye, 
HR9 5LE, 
England
Standout Features

Property Description

 

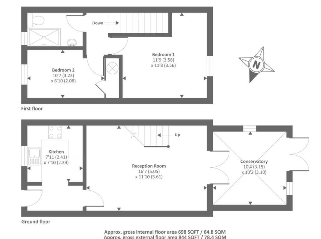
**NO ONWARD CHAIN** A very nice TWO BEDROOM - TWO RECEPTION mid terraced property situated on a quiet cul-de-sac - comprising modern fitted kitchen - spacious sitting / dining room - large conservatory extension - family bathroom - private rear garden - parking for TWO CARS - Gas & Electrical safety certification EPC: C

Entrance Hallway - Stylishly Fitted Modern Kitchen - Spacious Sitting / Dining Roo - Rear Conservatory Extension - Stairs and Landing to Upper Floor - Two Bedrooms - Family Bathroom - Private Rear Garden - Parking for Two Cars - GCH - Double Glazed Throughout - EPC: C

Agents Comment

A well-presented three bedroom family home, situated within a popular residential cul-de-sac in the highly sought-after Belmont area of Hereford, offering convenient access to local schools, amenities, and the city centre.

The accommodation is arranged over two floors and offers well-balanced living space throughout. The ground floor comprises an entrance hallway, a spacious sitting room providing comfortable everyday living, and a fitted kitchen/dining room offering ample storage, workspace and direct access to the rear garden, ideal for family life and entertaining.

To the first floor, there are two well-proportioned bedrooms, including one double and a good-sized single, all served by a modern family bathroom.

Externally, the property benefits from front and rear gardens, with the rear garden offering a pleasant and private outdoor space, ideal for relaxing or entertaining. The property also benefits from driveway parking and, subject to confirmation, may include a garage or allocated parking.

Located in a quiet residential setting, Glastonbury Close is ideally placed for access to Belmont Abbey Primary School, local shops, supermarkets, leisure facilities and excellent transport links, making this an ideal home for families, couples and professionals alike.

Key Features:

• Popular Belmont location

• Two bedrooms

• Spacious sitting room

• Kitchen/dining room with garden access

• Family bathroom

• Private rear garden

• Driveway parking

• Quiet cul-de-sac position

SELLING? WE OFFER FREE MARKET APPRAISALS OR SALES ADVICE MEETINGS WITHOUT OBLIGATION. CONTACT NORTHWOOD ON 01989 764050 TO FIND OUT HOW OUR AWARD-WINNING SERVICE CAN GUIDE YOU ON THE BEST WAY TO SELL YOUR PROPERTY.

Stamp Duty: Ensure you understand your Stamp Duty and Land Tax (SDLT) obligations before making an offer.

Residential Properties: Stamp Duty applies to purchases over £125,000 (standard threshold). First-time buyers benefit from an increased threshold of £300,000, provided the property costs £500,000 or less.

Additional Properties: If you’re purchasing a second home or buy-to-let property, a 5% surcharge applies on top of standard rates.

We give notice that these particulars, although believed to be correct, do not constitute any part of an offer of contract, that all statements contained in these particulars as to this property are made without responsibility and are not to be relied upon as statements or representations of fact and that they do not make or give any representation or warranty whatsoever in relation to this property. Any intending purchaser must satisfy himself by inspection or otherwise as to the correctness of each of the statements contained in these particulars. The agent has not tested any apparatus, equipment, fixture, fittings or services and so cannot verify that they are in working order or fit for their purpose, neither has the agent checked the legal documents to verify the freehold/leasehold status of the property. The buyer is advised to obtain verification from their solicitor or surveyor.

AML REGULATIONS To ensure compliance with the latest Anti Money Laundering Regulations all intending purchasers must produce identification documents prior to the issue of sale confirmation. To avoid delays in the buying process please provide the required documents as soon as possible. We may use an online service provider to also confirm your identity. A list of acceptable ID documents is available upon request.

  EPC rating: C. Council tax band: B, Domestic rates: £1873.33, Tenure: Freehold,

Additional Information
EPC Rating:
C
Tenure:
Freehold
Council Tax Band:
B

Mortgage calculator

Calculate Your Stamp Duty
£
Results
Stamp Duty To Pay:
Effective Rate:
Tax Band % Taxable Sum Tax

Glastonbury Close, Belmont, Hereford, HR2

Struggling to find a property? Get in touch and we'll help you find your ideal property.

Interested in viewing this property?
Book a Viewing
Main menu