2 bedroom Flat For Sale
Offers over £230,000 | For Sale
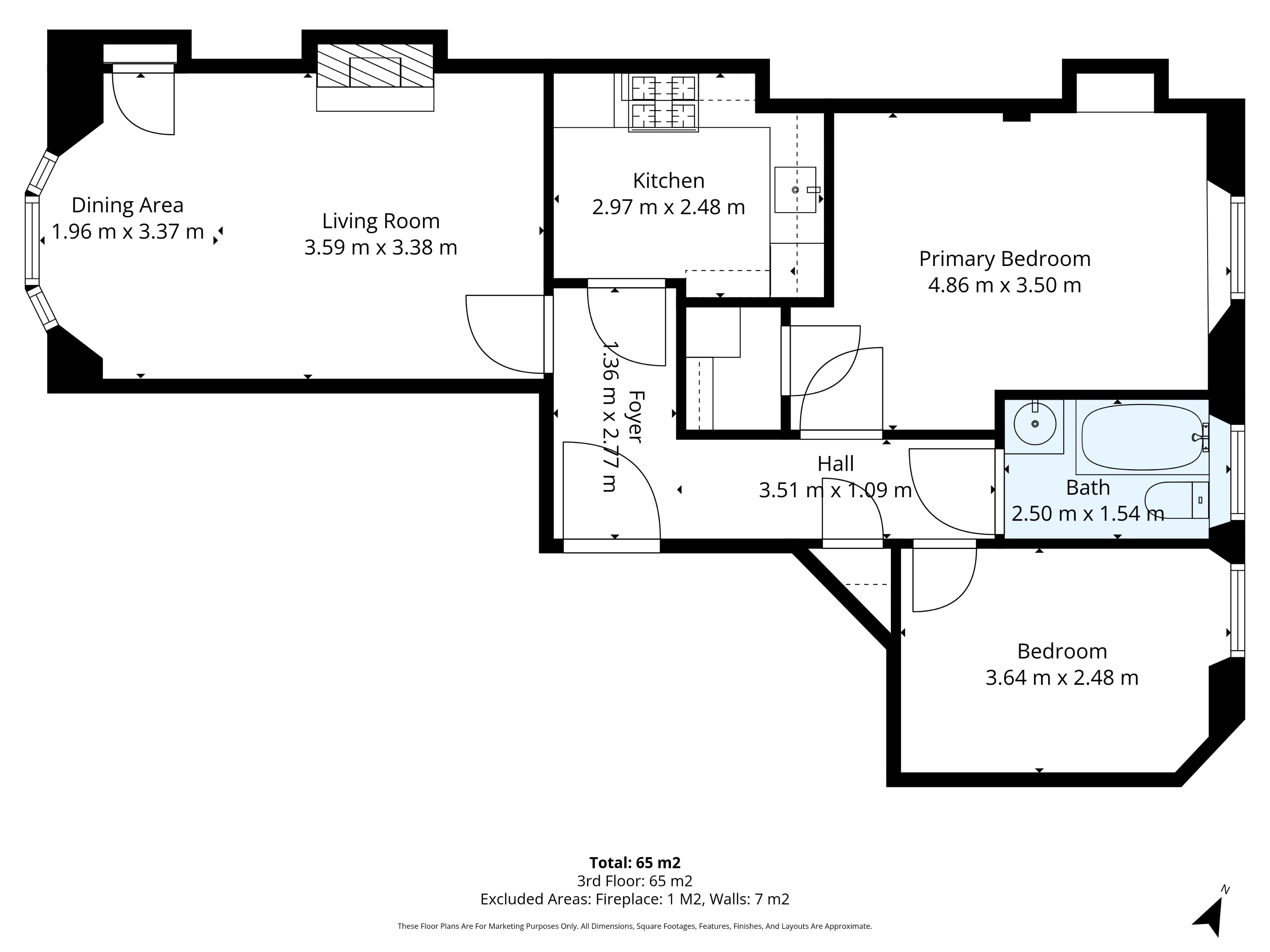
Lying on the top floor of a traditional tenement crowned by a striking original cupola, this well-presented two-bedroom apartment is in excellent condition.
Ideally located within walking distance of Leith Links and only a short drive from the city centre, it is perfectly suited to a broad range of buyers.
A carpeted entrance foyer and hallway with built in storage, lead into a bright and spacious bay windowed living and dining room. Generously proportioned and enjoying a south-west- facing aspect, this inviting space is flooded with natural light and boasts far-reaching skyline views. High ceilings, a built-in press, and a feature mantelpiece with a living flame fireplace enhance the room’s sense of comfort. Returning to the hallway, the modern, well-equipped kitchen features sleek white wall and floor units, complemented by a metro-tiled splashback and wood-effect worktops. High-spec integrated appliances include a gas hob, extractor hood, and oven.
Both double bedrooms are carpeted and tastefully decorated, offering comfortable and restful east-facing accommodation. They share access to a tiled bathroom fitted with a bath and wall-mounted shower, WC, and washbasin.
Externally there is on-street parking.
Accommodation Third Floor: Entrance foyer, hallway, living room, dining area, kitchen, two bedrooms, bathroom.
Outside Space: On-street parking.
Location
Situated to the North-East of Edinburgh city centre, Restalrig is a popular residential area. Open green spaces including Leith Links are within easy reach and include recreational sports pitches, tennis courts, pétanque, play areas, and picturesque walkways. Portobello Beach and Promenade is also close by. Craigentinny Golf Course and David Lloyd Health Club at Newhaven with its indoor and outdoor swimming pools, tennis courts, state-of-the-art gym, and fitness classes are a short drive. There are local convenience stores for daily shopping needs whilst larger requirements can be met by a Morrisons on Portobello Road and a Sainsbury’s at Meadowbank Retail Park. Bars, restaurants, cinemas, and retailers can be found at Ocean Terminal along with The Omni Centre and St James Quarter. The property lies in the catchment for Leith Primary School and Leith High School with private choices easily accessible. Regular bus services ensure that travel to and from the city centre and beyond is regular and swift EPC rating: E. Council tax band: B, Tenure: Freehold,
| Tax Band | % | Taxable Sum | Tax |
|---|
Struggling to find a property? Get in touch and we'll help you find your ideal property.