2 bedroom Flat For Sale

Poethlyn Drive, Costessey, NR8

£160,000 | For Sale

2 Bedrooms
2 Bathrooms

Norwich

7 Broadland Court, 
Wherry Road, 
Norwich, 
NR1 1UN, 
England
Standout Features

Property Description

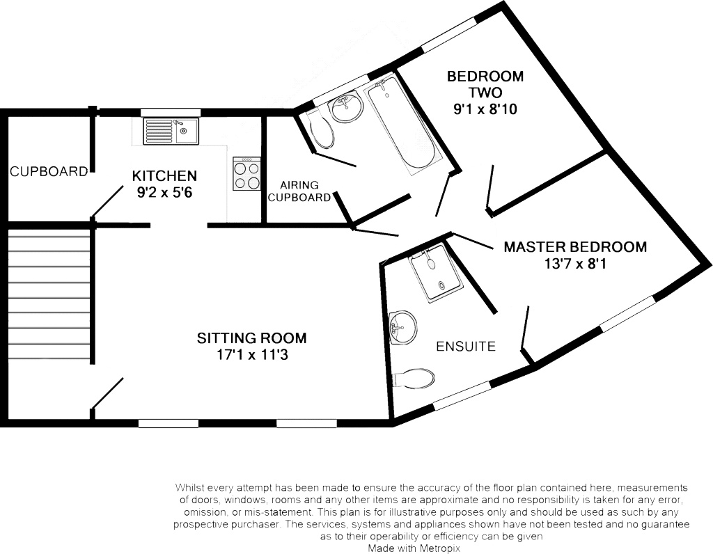
NO ONWARD CHAIN - This charming, two bedroom 1st floor apartment is available immediately, and is located in the popular Queens Hill area of Norwich, close to the city centre, NNUH, UEA and the Norwich Research Park. Viewing is highly recommended.

The property benefits from a private entrance with stairs leading to the good sized lounge, the kitchen is just off the lounge and includes an oven / hob, washing machine, dishwasher and fridge/freezer.

There are two double bedrooms with the master benefitting from an en-suite shower room. There is also a family bathroom with airing cupboard.

There is one allocated parking space.

Service charge for 2025 totaled £381.67 

PLEASE NOTE: Northwood confirm that these particulars are believed to be accurate but they are a brief summary issued for general guidance only and are not comprehensive. These particulars and any text, measurements, dimensions or indicative plans made available are for general information only and do not form part of any offer or contract. Prospective purchases should not rely on these particulars and must satisfy themselves on all aspects by inspection or otherwise. Northwood, their employees and representatives are not authorised to make or give any representations, assurances or warranties for the property, whether within these particulars or otherwise, and no liability is accepted to the purchaser in this respect.

  EPC rating: C. Council tax band: B, Domestic rates: £1873.62, Tenure: Leasehold, Annual ground rent: £75, Annual service charge: £381.67, Length of lease (remaining): 131 years 3 months,

Additional Information
EPC Rating:
C
Tenure:
Leasehold
Ground Rent:
£75 per year
Service Charge:
£381 per year
Council Tax Band:
B

Mortgage calculator

Calculate Your Stamp Duty
£
Results
Stamp Duty To Pay:
Effective Rate:
Tax Band % Taxable Sum Tax

Poethlyn Drive, Costessey, NR8

Struggling to find a property? Get in touch and we'll help you find your ideal property.

Interested in viewing this property?
Book a Viewing
Main menu