1 bedroom Flat For Sale

Rowes Mews, St Peters Basin, Newcastle upon Tyne, NE6

£125,000 | For Sale

1 Bedrooms
1 Bathrooms
1 Receptions

Newcastle

676 West Road, 
Denton Burn, 
Newcastle upon Tyne, 
NE5 2UR, 
England
Standout Features

Property Description

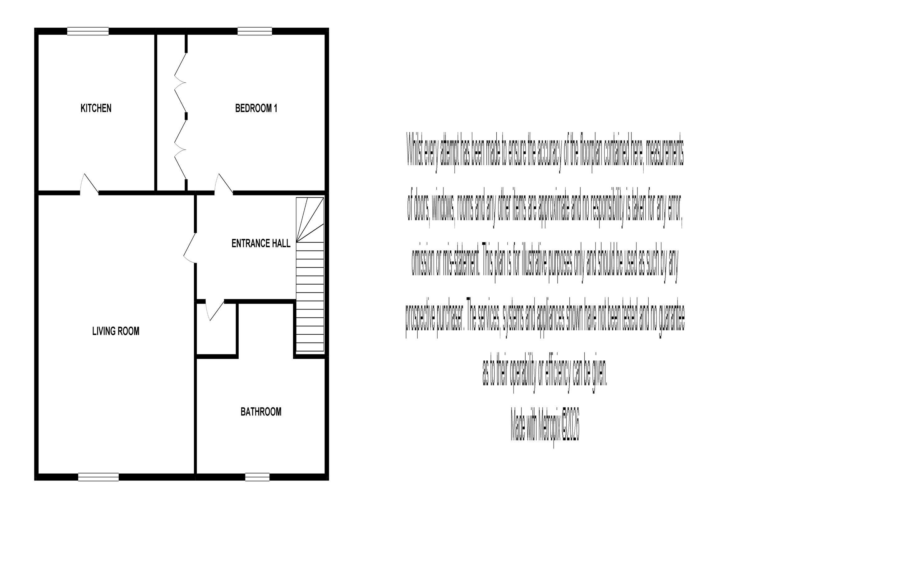
A well-presented one bedroom flat situated in the sought-after Rowes Mews development within St Peter’s Basin, NE6.

Accessed via a private entrance, stairs lead to the first-floor landing which provides access to all principal rooms. From the landing, you enter a spacious and bright living room, offering a comfortable setting for both relaxing and entertaining. The living area leads through to the kitchen, which is well-appointed with ample worktop space and generous storage.

The bedroom is a good-sized double and benefits from built-in cupboards, providing excellent storage solutions. The bathroom has been recently refurbished to a high standard and features a contemporary walk-in shower.

This attractive flat is ideally positioned within the popular St Peter’s Basin area, offering convenient access to local amenities and transport links.

For further information or to arrange your viewing, please contact our Benton office on 0191 2664455.

Freehold

Council Tax Band 2026-2027 - B - approx £1976.07 per annum.

EPC Rating - D

We endeavour to make our sales particulars accurate and reliable, however, they do not constitute or form part of an offer or any contract and none is to be relied upon as statements of representation or fact. Any services, systems and appliances listed in this specification have not been tested by us and no guarantee as to their operating ability or efficiency is given. All measurements have been taken as a guide to prospective buyers only, and are not precise. If you require clarification or further information on any points, please contact us, especially if you are travelling some distance to view. Fixtures and fittings other than those mentioned are to be agreed with the seller by separate negotiation. EPC rating: D. Council tax band: B, Domestic rates: £1875.68, Tenure: Leasehold,

Additional Information
EPC Rating:
D
Tenure:
Leasehold
Council Tax Band:
B

Mortgage calculator

Calculate Your Stamp Duty
£
Results
Stamp Duty To Pay:
Effective Rate:
Tax Band % Taxable Sum Tax

Rowes Mews, St Peters Basin, Newcastle upon Tyne, NE6

Struggling to find a property? Get in touch and we'll help you find your ideal property.

Interested in viewing this property?
Book a Viewing
Main menu