1 bedroom Flat Sold STC

Balfour Road, Southville, Bristol, BS3

Guide Price £250,000 | Sold STC

1 Bedrooms
1 Bathrooms
1 Receptions

Bristol

271 North Street, 
Southville, 
Bristol, 
BS3 1JN, 
England
Standout Features

Property Description

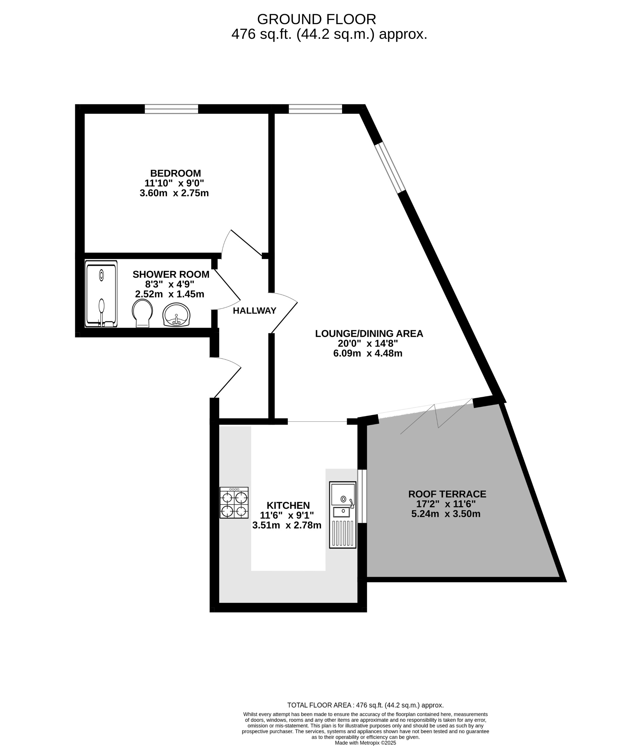
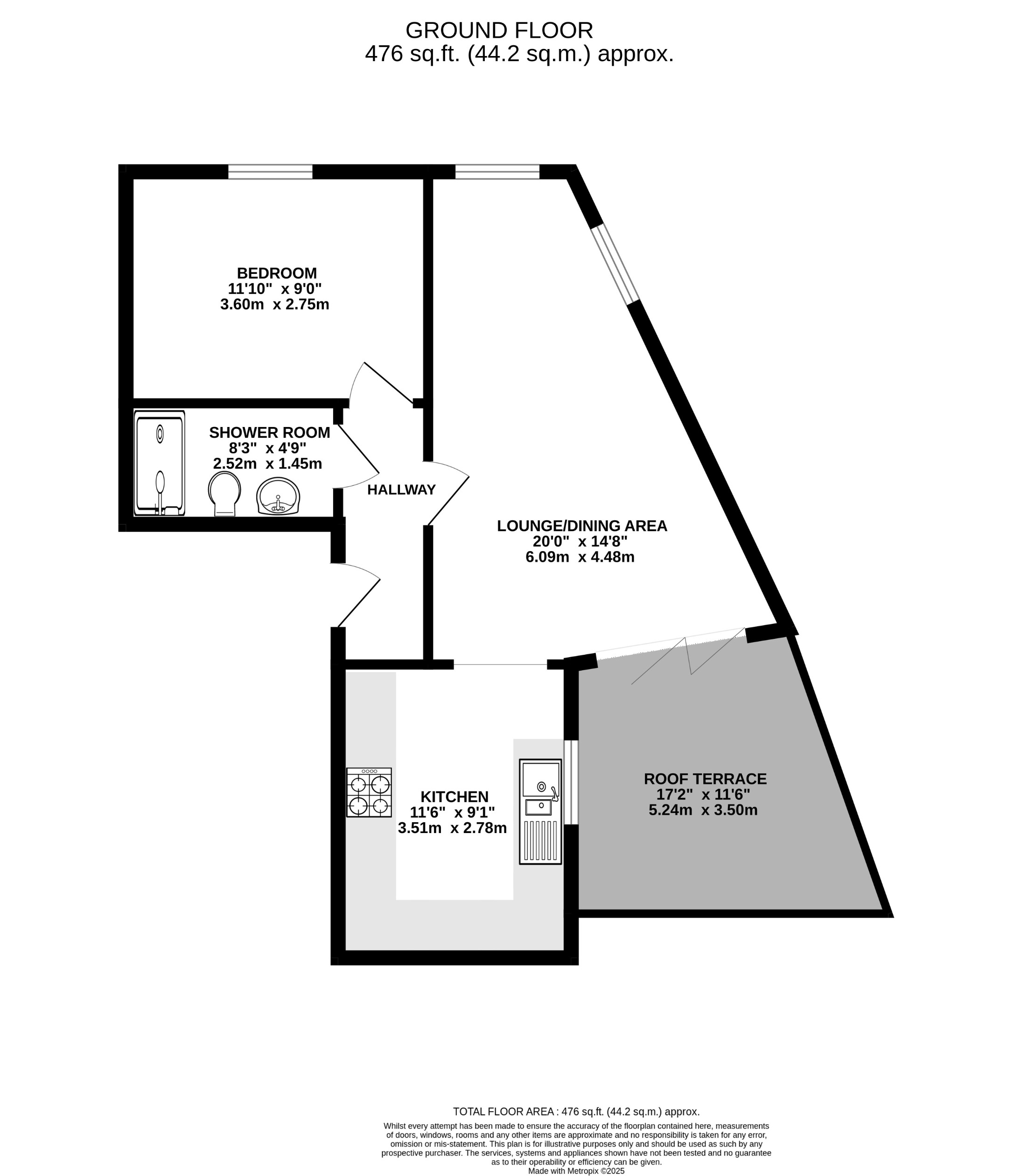
Upon entry, you are greeted by the hallway, which in-turn leads to the shower room, bedroom and the welcoming open-plan reception area that exudes a sense of light and space, thanks to its impressive triple aspect design. Natural sunlight streams through expansive windows, highlighting the immaculate finishes and creating a warm atmosphere throughout the day. The contemporary layout is enhanced by seamless bi-fold doors that open directly onto a large private roof terrace—a stunning feature perfect for alfresco dining, entertaining guests, or simply admiring the panoramic views. From this exceptional vantage point, enjoy uninterrupted vistas of Ashton Court’s rolling parkland and the iconic Clifton Suspension Bridge, setting a scene that is both picturesque and inspiring.

The kitchen, thoughtfully integrated within the open-plan space, features stylish fitted appliances which blend effortlessly into the modern design. Sleek cabinets, ample countertop space, and high-quality fittings create an environment ideal for everyday cooking and hosting friends. Whether preparing a quick breakfast before work or enjoying a leisurely brunch at the weekend, this kitchen meets the highest standards of functionality and design.

The spacious double bedroom offers a peaceful retreat, benefitting from ample room for storage and a relaxing atmosphere that encourages rest and rejuvenation. Designed with comfort in mind, it serves as the perfect haven after a busy day in the city.

The shower room is equally impressive, boasting a large shower enclosure that provides a spa-like experience at home. Finished with contemporary tiling and modern fixtures, this space is tailored for relaxation and practicality.

One of this property’s most distinctive features is the expansive roof terrace, significantly larger than typically found in city centre flats. This outdoor space is undoubtedly a highlight, providing ample room for outdoor furniture and plants, and offering captivating views that will quickly become the backdrop to everyday living. It is a rare find that truly sets this property apart.

Located within easy reach of vibrant local shops, cafes, and restaurants, as well as major commuter routes, the flat caters to a variety of lifestyles. The proximity to public green spaces and parks, coupled with excellent transport connections, ensures that both tranquillity and urban vibrancy are close at hand.

Ideal for those embarking on their property journey or seeking a sound investment, this flat combines contemporary style, exceptional outdoor space, and an enviable location. Early viewing is highly recommended to fully appreciate the unique features and lifestyle opportunities this home affords.
Contact us today to arrange your personal viewing and discover the outstanding appeal of this remarkable city flat.

SITUATION

Located within walking distance of the popular a vibrant North Street and its array of cafés and bars, this home will no doubt appeal to first time byers and property investors alike.

Bristol is famed for its growing reputation within the business sector and is home to a number of large employers including Rolls-Royce and the MOD.

The diverse culture within the city makes it an ideal destination for dining out, with a number of high-quality restaurants and brasseries within the Clifton area and throughout the city. The city is also home to a number of iconic landmarks including Brunel’s Clifton Suspension Bridge and the impressive SS Great Britain. The Bristol International Balloon Fiesta is held annually at the Ashton Court estate and attracts balloonists and spectators from all corners of the world.

Bristol also boasts a modern shopping centre in the heart of the city, Cabot Circus which offers a broad spectrum of shops and dining facilities. On the northern side of the city just off junction 17 of the M5 is the regional shopping centre Cribbs Causeway, again offering a plethora of shops, restaurants, and leisure facilities.

The Heritage city of Bath is also within easy reach of the property. Famed for its Georgian architecture Bath is home to the Roman Baths and is a popular destination for locals and tourists. The city also boasts a racecourse for the racing enthusiasts.

The M4 and M5 motorways are within easy reach, mainline rail connections to London Paddington are offered at Parson Street Station. For those looking to travel further afield, Bristol International Airport is a mere 7 miles away and offers regular domestic and international flights.

GENERAL

Tenure – Leasehold, balance of 999 years remaining, £2,337.44 p.a. annual service charge. Services - Mains water, mains gas, mains electricity. Postcode – BS3 2AF. Energy Performance Certificate – C Viewings - Strictly by appointment with the Vendors agent Northwood. EPC rating: C. Council tax band: A, Tenure: Leasehold, Annual service charge: £2337, Length of lease (remaining): 989 years 6 months,

Additional Information
EPC Rating:
C
Tenure:
Leasehold
Service Charge:
£2,337 per year
Council Tax Band:
A

Mortgage calculator

Calculate Your Stamp Duty
£
Results
Stamp Duty To Pay:
Effective Rate:
Tax Band % Taxable Sum Tax

Balfour Road, Southville, Bristol, BS3

Struggling to find a property? Get in touch and we'll help you find your ideal property.

Interested in viewing this property?
Book a Viewing
Main menu