4 bedroom Semi-detached house For Sale

Harry Houghton Road, Wheelock, Sandbach, CW11

Guide Price £290,000 | Available

4 Bedrooms
2 Bathrooms
1 Receptions

Crewe & Sandbach

9 Hightown, 
Sandbach, 
CW11 1AD, 
England
Standout Features

Property Description

Sitting on a favourable plot on the edge of the development is this spacious, semi-detached house with stunning views to the front overlooking neighbouring farmers fields.

Built in 2017, the house has a modern interior and our current vendors paid for a number of upgrades at the time, such as the half tiling, heated towels rails in the bathroom, upgrades to the kitchen to name a few. Meaning any lucky purchasers have a home they can just move their furniture into. A property of this size and location would make an ideal purchase for first-time buyers or young family wanting a home in a central location.

Total floor area is over 950 Sq. ft and spread out across three spacious floors, the extra floor means there are good size bedrooms with the master being the entire top floor and benefits from large, built-in wardrobes and en-suite. We love this house because of the modern interior, the size of the house and the big selling point, the views to the front.

Wheelock is a popular and well-established village within a central location in Sandbach meaning everything is nearby. Sandbach has a handful of reputable primary and secondary schools and all are withing walking distance, Sandbach train station and town centre are a 15-20 minute walk from here. For those who enjoy a scenic walk there are some popular routes like Salt Line Way and the canal on your doorstep.

EPC rating: B. Council tax band: D, Tenure: Freehold,
Additional Information
EPC Rating:
B
Tenure:
Freehold
Council Tax Band:
D
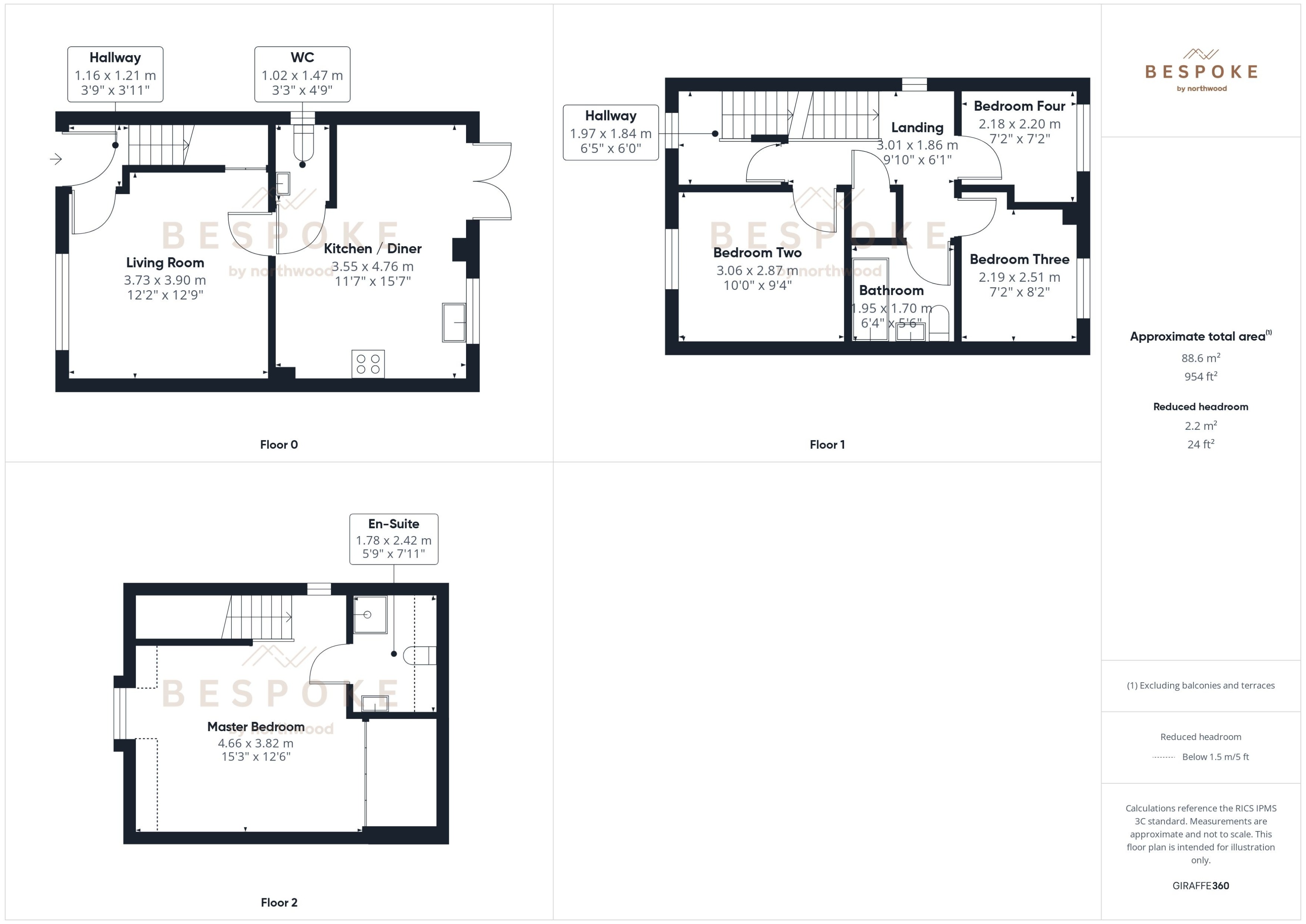
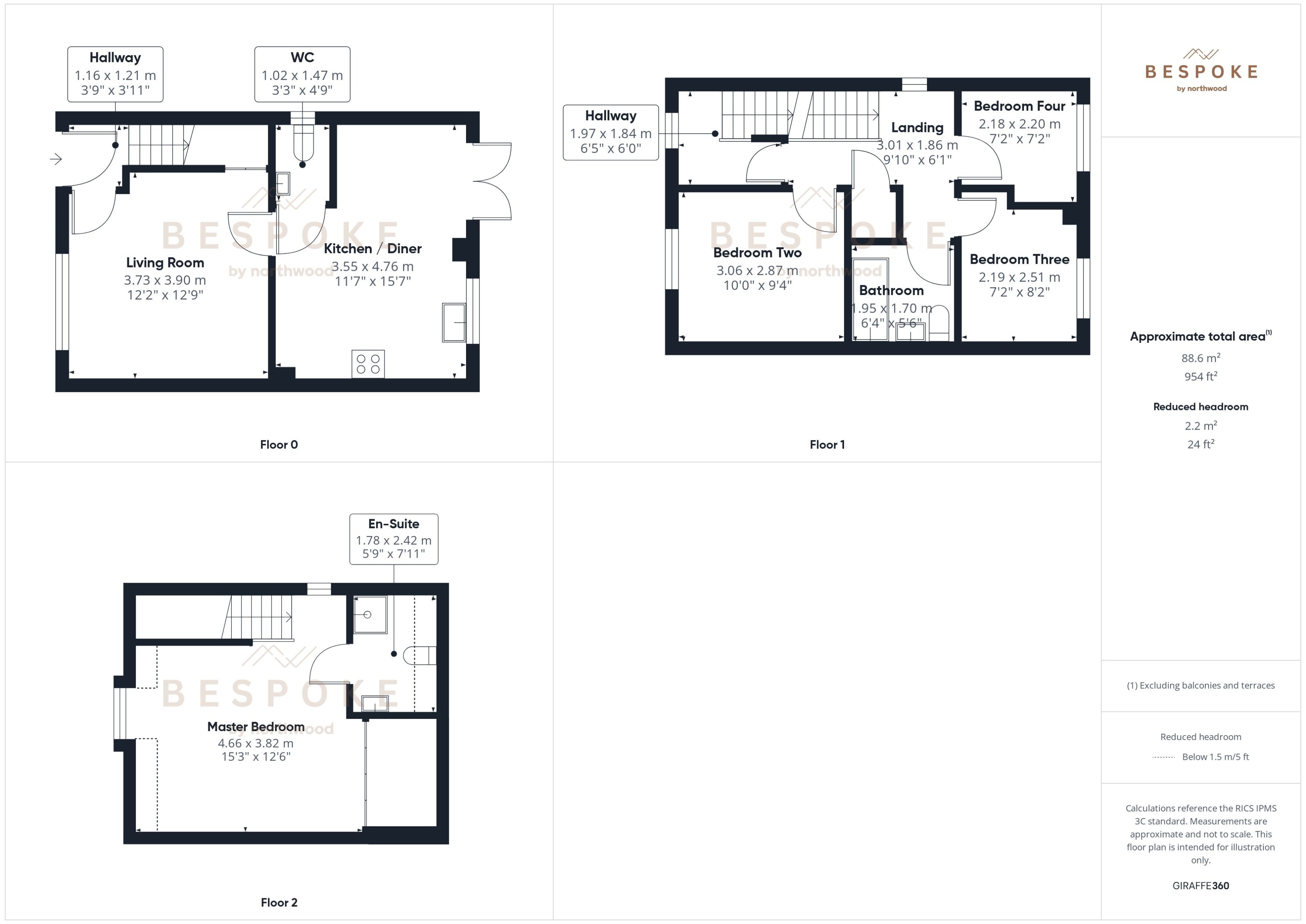
Rooms
Accommodation
Entrance Hallway
Composite front entrance door, wall mounted radiator, stairs to the first floor and door into.
Living Room
uPVC double glazed window to the front elevation with fitted blind, wall mounted radiator, TV point, large under-stairs storage cupboard, smoke alarm, fitted carpet and door into.
Kitchen / Diner
Fitted with a number of contrasting high gloss wall and base units with under-counter lighting and working surfaces over incorporating a one and a half bowl stainless steel sink and drainer, eye level electric oven and grill, four ring gas hob with glass splash-back and extractor fan above and integrated fridge / freezer, dishwasher and space and plumbing for washing machine. Vinyl flooring, wall mounted radiator, TV point, uPVC double glazed window to the rear elevation, uPVC double glazed patio doors leading out into the garden and door into.
Downstairs W/C
Fitted with a two piece suite comprising a low level W/C and hand wash basin with tiled splash-back. Partially tiled walls and vinyl flooring, wall mounted radiator, spotlights in the ceiling and frosted uPVC double glazed window to the side elevation.
First Floor
Landing
Doors to bedrooms 2,3,4 and family bathroom, two uPVC double glazed windows to the front and side elevations, wall mounted radiator, built-in storage cupboard and door and stairs to second floor.
Bedroom Two
uPVC double glazed window with lovely views to the front elevation, wall mounted radiator, TV point and fitted carpet.
Bedroom Three
uPVC double glazed window to the rear elevation, wall mounted radiator and fitted carpet.
Bedroom Four
uPVC double glazed window to the rear elevation, wall mounted radiator and fitted carpet.
Family Bathroom
Fitted with a modern three-piece suite comprising a white composite paneled bath with mixer taps, vanity hand wash basin and low level W/C. Half tiled walls and vinyl flooring, wall mounted radiator, spotlights in the ceiling and extractor fan.
Second Floor
Master Bedroom
A spacious room that is the entire length and width of the house with two uPVC double glazed windows to the front and side elevations (the front has stunning views over neighbouring farmers fields) wall mounted double radiator, loft access point, large built-in full length wardrobes with hanging space, shelves and glass sliding doors, fitted carpet and door into.
En-Suite
Fitted with a modern three piece suite comprising a freestanding shower unit connected to the mains supply and retractable glass screen, hand wash basin and low level W/C. Half tiled walls and vinyl flooring, chrome heated towel rail, spotlights in the ceiling, extractor fan and Velux double glazed window to the rear elevation.
Outside
To the front of the house is a long tarmac drive that runs down the side of the house and provides parking for 2-3 cars depending on size, pathway to the front door and lawn section.

To the rear is a south-east facing garden that has a small patio area and lawn section, outside water tap, part wall and part fence boundaries and side access gate.
Please Note
With all homes on this estate, a service charge is payable for the maintenance of the roads and green spaces. We believe that is approximately £120 per annum.
Disclaimer
These particulars have been prepared in good faith as a general guide, they are not exhaustive and include information provided to us by other parties including the seller, not all of which will have been verified by us. They do not form part of any offer or contract and should not be relied upon as statements of fact.

Mortgage calculator

Calculate Your Stamp Duty
£
Results
Stamp Duty To Pay:
Effective Rate:
Tax Band % Taxable Sum Tax

Harry Houghton Road, Wheelock, Sandbach, CW11

Struggling to find a property? Get in touch and we'll help you find your ideal property.

Interested in viewing this property?
Book a Viewing
Main menu