4 bedroom Semi-detached bungalow Sold STC

Woodland Drive, Norwich, NR6

£350,000 | Sold STC

4 Bedrooms
2 Bathrooms
2 Receptions

Norwich

7 Broadland Court, 
Wherry Road, 
Norwich, 
NR1 1UN, 
England
Standout Features

Property Description

NO ONWARD CHAIN!!! Northwood are pleased to bring to the market this attractive family home situated on an extremely desirable road in Old Catton with beautiful and extensive rear gardens. 

This semi-detached chalet bungalow has been extended and improved over the years to make it it into a spacious family home.

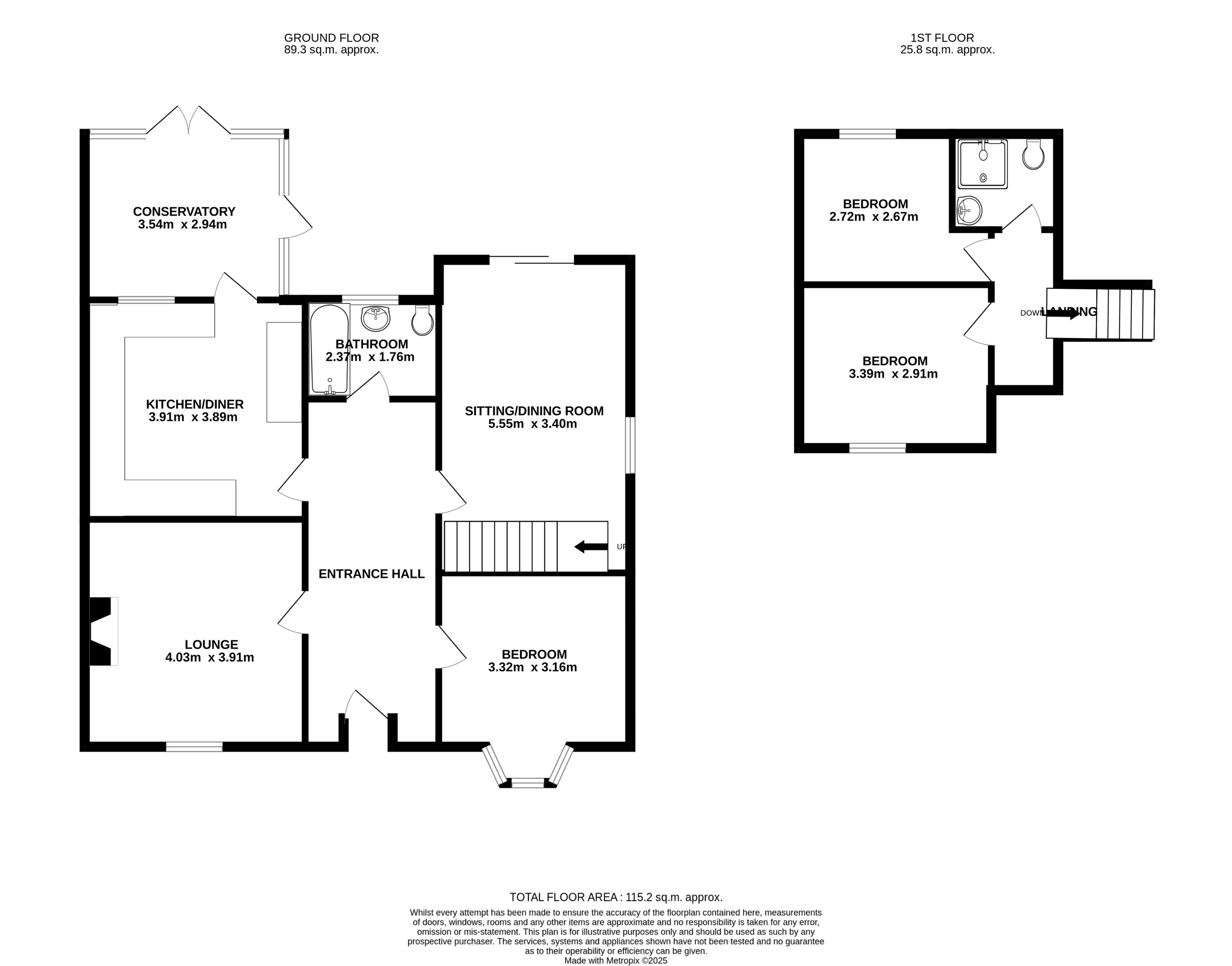
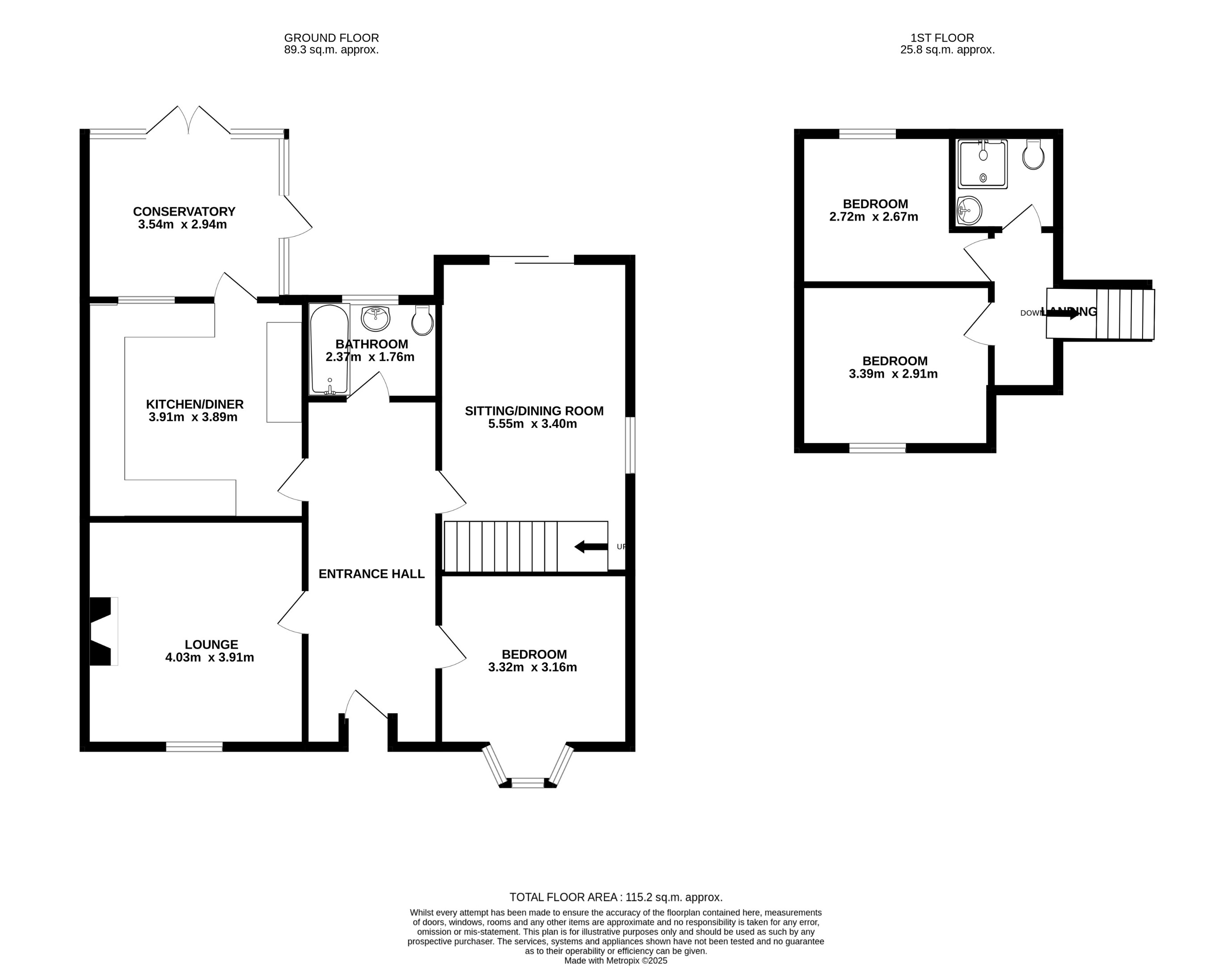
Ground floor accommodation comprises; entrance hallway, two double bedrooms to front aspect, one of which could be used as a separate dining room, to the rear there is kitchen/dining room, sun room, bathroom, lounge with sliding doors overlooking the gardens and stairs to first floor.

First floor accommodation; landing, two double bedrooms and shower room. There is also two large walk in storage cupboards in the eves.

Outside: Driveway with ample parking, detached garage and carport to side, the beautifully landscaped rear gardens have two storage sheds, a small garden room and large workshop building down the bottom of the garden overlooking the allotments to the rear. 

PLEASE NOTE: Northwood confirm that these particulars are believed to be accurate but they are a brief summary issued for general guidance only and are not comprehensive. These particulars and any text, measurements, dimensions or indicative plans made available are for general information only and do not form part of any offer or contract. Prospective purchasers should not rely on these particulars and must satisfy themselves on all aspects by inspection or otherwise. Northwood, their employees and representatives are not authorised to make or give any representations, assurances or warranties for the property, whether within these particulars or otherwise, and no liability is accepted to the purchaser in this respect. EPC rating: D. Council tax band: C, Tenure: Freehold,

Additional Information
EPC Rating:
D
Tenure:
Freehold
Council Tax Band:
C

Mortgage calculator

Calculate Your Stamp Duty
£
Results
Stamp Duty To Pay:
Effective Rate:
Tax Band % Taxable Sum Tax

Woodland Drive, Norwich, NR6

Struggling to find a property? Get in touch and we'll help you find your ideal property.

Interested in viewing this property?
Book a Viewing
Main menu