4 bedroom Duplex For Sale

Brandon Terrace, New Town, Edinburgh, EH3

Fixed Price £575,000 | For Sale

4 Bedrooms
2 Bathrooms
2 Receptions

Edinburgh

13 Comely Bank Rd, 
Stockbridge, 
Edinburgh, 
EH4 1DR, 
Scotland
Standout Features

Property Description

***FIXED PRICE £75,000 BELOW HOME REPORT VALUTION***

Representing a modern, yet characterful city home in the exclusive New Town, within its UNESCO World Heritage Site conservation area, this four-bedroom, two-bathroom duplex apartment is arranged over the third and fourth floors of a C-listed Victorian tenement building. The flat and its location are sure to appeal to a wealth of buyers, coming beautifully presented with modern fixtures and fittings, perfectly blended with tasteful décor and period features. Excellent amenities lie within easy reach of the home, such as the Royal Botanic Garden and Inverleith Park, the Water of Leith walkway, a wide range of shops including well-known stores, a supermarket, and independent retailers, education facilities in the state and private sectors, transport links connecting across the city, and an eclectic selection of eateries and bars. 

Entrance – Welcoming you inside

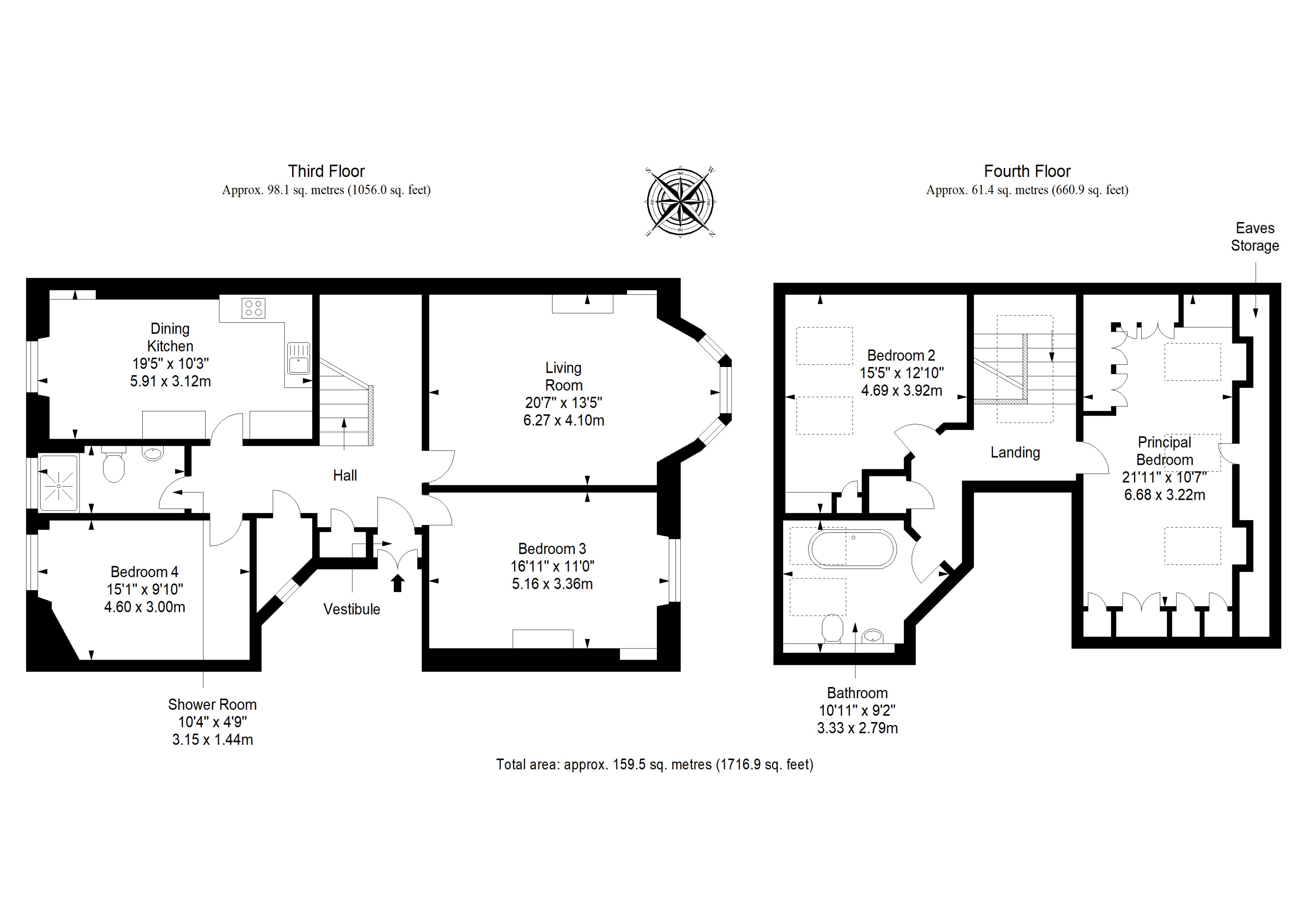
The flat’s front door is on the third floor, approached via a secure shared entrance and stairwell, and you are invited inside by a wide, airy hallway with built-in cupboards and a large under-stair storage area. Here, the tone for the interiors is set, with neutral décor, a brick accent wall, and warmly toned wood flooring.

Living room – Impressive living room filled with wonderful period charm

The living room is an impressive reception area, filled with natural light through a large bay window (with a traditional panelled surround), and it offers ample space for endless lounge furniture configurations. It has a useful fitted media wall with space for a TV, shelving, and hidden storage, as well as a homely fireplace flanked by an open Edinburgh press, and it is elegantly decorated in neutral and sage green hues. Further period charm is added to the space with beautifully detailed cornicing and a ceiling rose.

Dining kitchen – Sure to appeal to those who love to host dinner parties

The sunny southeast-facing kitchen is sure to be a sociable gathering space in this fantastic city home, with ample room for a large dining table and chairs, alongside additional furniture if desired. Glossy, contemporary cabinetry is supplemented by granite and wood worktops and splashback panels, as well as integrated appliances comprising a double oven, a gas hob, a concealed extractor fan, a fridge, a dishwasher, and a washing machine. The room further benefits from a handy clothes pulley and an Edinburgh press, and it enjoys pared-back neutral décor and handsome wood flooring.

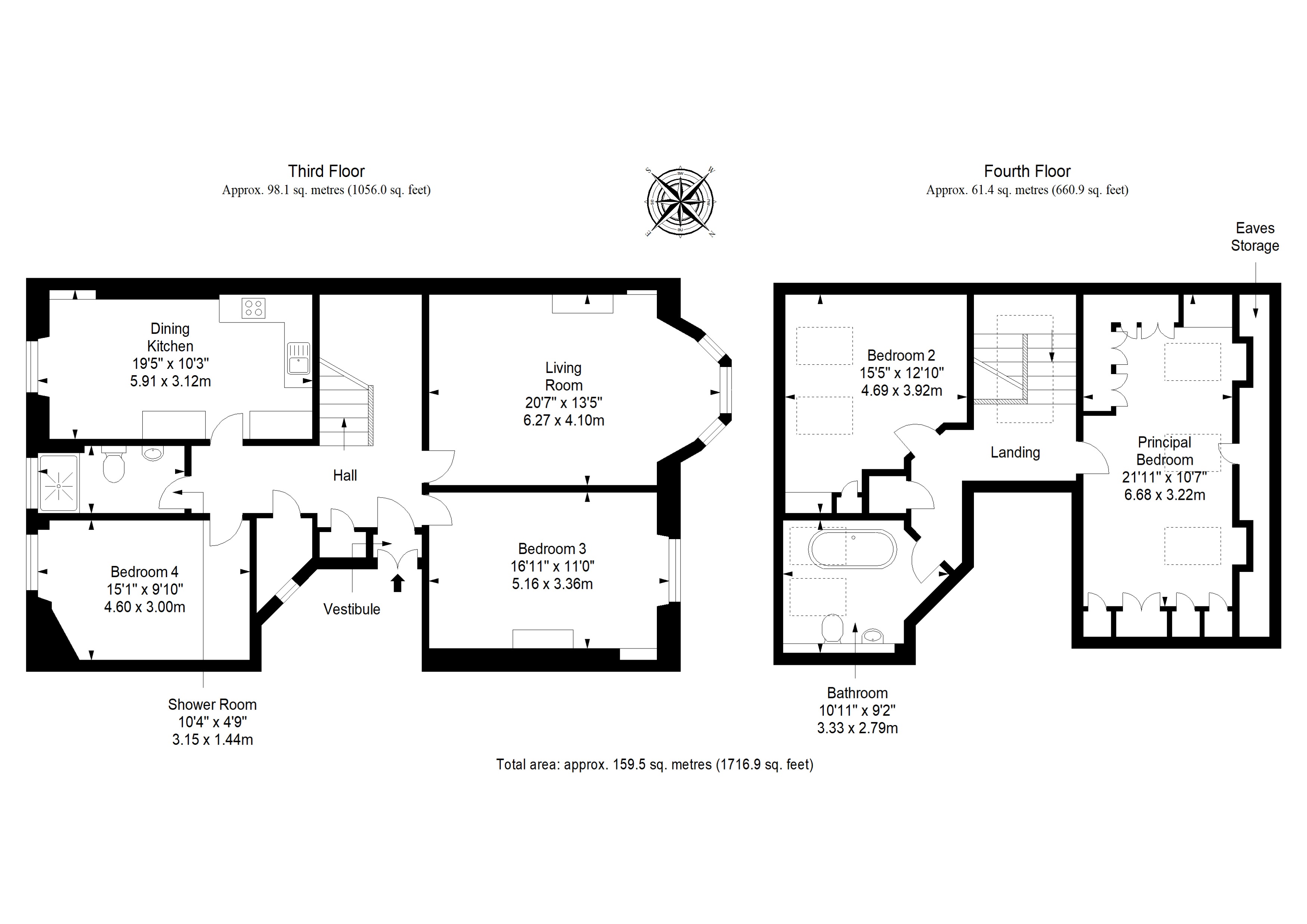
Bedrooms – Four peaceful bedrooms for a restful night’s sleep

There are four well-proportioned, light-filled double bedrooms in the property. The principal bedroom (on the upper floor) occupies a particularly generous footprint and is accompanied by a wealth of built-in storage and a fitted dressing table. The other fourth-floor bedroom also has a fitted wardrobe and dressing table. The remaining bedrooms are on the lower floor, with one enjoying an eye-catching feature wall framing a beautiful fireplace and an Edinburgh press, in addition to a large fitted shelving unit. The lower floor bedrooms could easily lend themselves to alternative uses, such as a home office – ideal for those requiring a quiet space to work or study from home.

Bathrooms – Two beautifully appointed washrooms 

There are two contemporary washrooms in the property, with one conveniently on each floor. The third-floor shower room comprises an enclosure with a rainfall showerhead and handset, a traditionally styled WC-suite, and a mirrored, wall-mounted vanity cabinet, all enveloped by stylish wall tiles and exposed brick accents walls. The beautifully tiled fourth-floor bathroom comes complete with a freestanding bathtub, a WC-suite, and a mirrored vanity cabinet.

The flat is kept warm by a gas central heating system and partially double-glazed windows.

Garden and parking – Shared outdoor space and residents’ permit parking

Externally, the flat enjoys access to a mature, walled shared garden, whilst controlled on-street parking can be found nearby and falls under Zone 6.

Extras: All fitted floor coverings, window coverings, light fittings, and integrated kitchen appliances will be included in the sale. AreaNew Town

Set within the New Town, the property enjoys a prime location in Edinburgh’s most prestigious postcode. Its excellent situation offers residents the finest amenities the capital has to offer, all within easy walking distance. On your doorstep, you will find a superb choice of top-rated restaurants, cafés, fashionable bars, and clusters of small speciality shops. The New Town hosts world-class shopping outlets including Harvey Nichols, John Lewis, Multrees Walk at St. Andrew Square, and St James Quarter, while Princes Street is lined with all the top-name High Street retailers. Stockbridge offers a unique village atmosphere, and the independent outlets here are arguably some of the best in the country. A selection of some of Scotland’s finest art galleries is in close proximity, including the National Portrait Gallery, the Gallery of Modern Art, and the Scottish National Galleries. For days out, picnics or scenic walks, the tranquil Water of Leith at Stockbridge and the colourful Royal Botanic Gardens are both nearby, as is the breathtaking Calton Hill. Edinburgh boasts some of the best private schools in the country. Both Fettes and Edinburgh Academy are close by, along with excellent state schools. The area offers an abundance of public transport services for commuting to any part of the city or other parts of the country. The tram line runs from nearby all the way to the airport, whilst there are over 35 bus routes departing from the area, and Waverley Station is conveniently close. EPC rating: C. Council tax band: F, Tenure: Freehold,

Additional Information
EPC Rating:
C
Tenure:
Freehold
Council Tax Band:
F

Mortgage calculator

Calculate Your Stamp Duty
£
Results
Stamp Duty To Pay:
Effective Rate:
Tax Band % Taxable Sum Tax

Brandon Terrace, New Town, Edinburgh, EH3

Struggling to find a property? Get in touch and we'll help you find your ideal property.

Interested in viewing this property?
Book a Viewing
Main menu