4 bedroom Apartment Sold STC

Parkway, Wilmslow, SK9

Guide Price £550,000 | Sold STC

4 Bedrooms
3 Bathrooms
3 Receptions

Macclesfield

22 Church Street, 
Macclesfield, 
SK11 6LB, 
England
Standout Features

Property Description

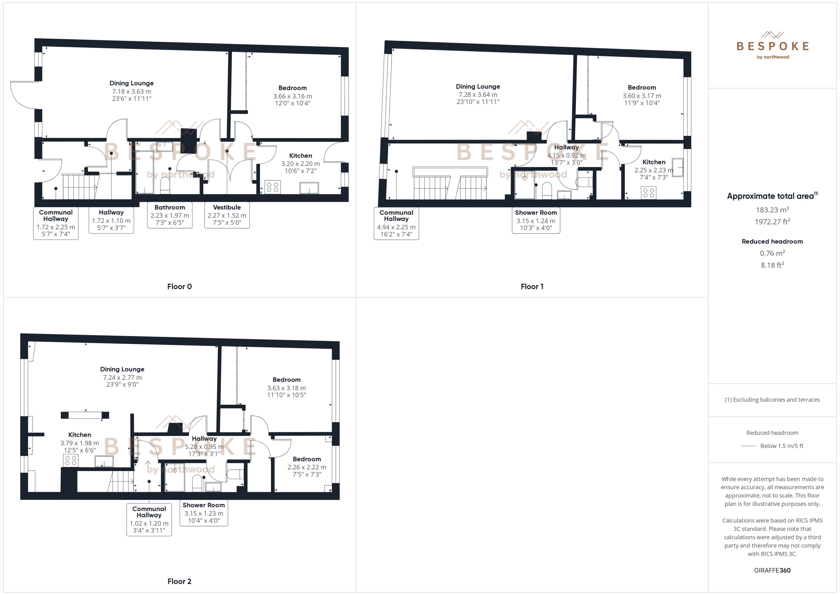
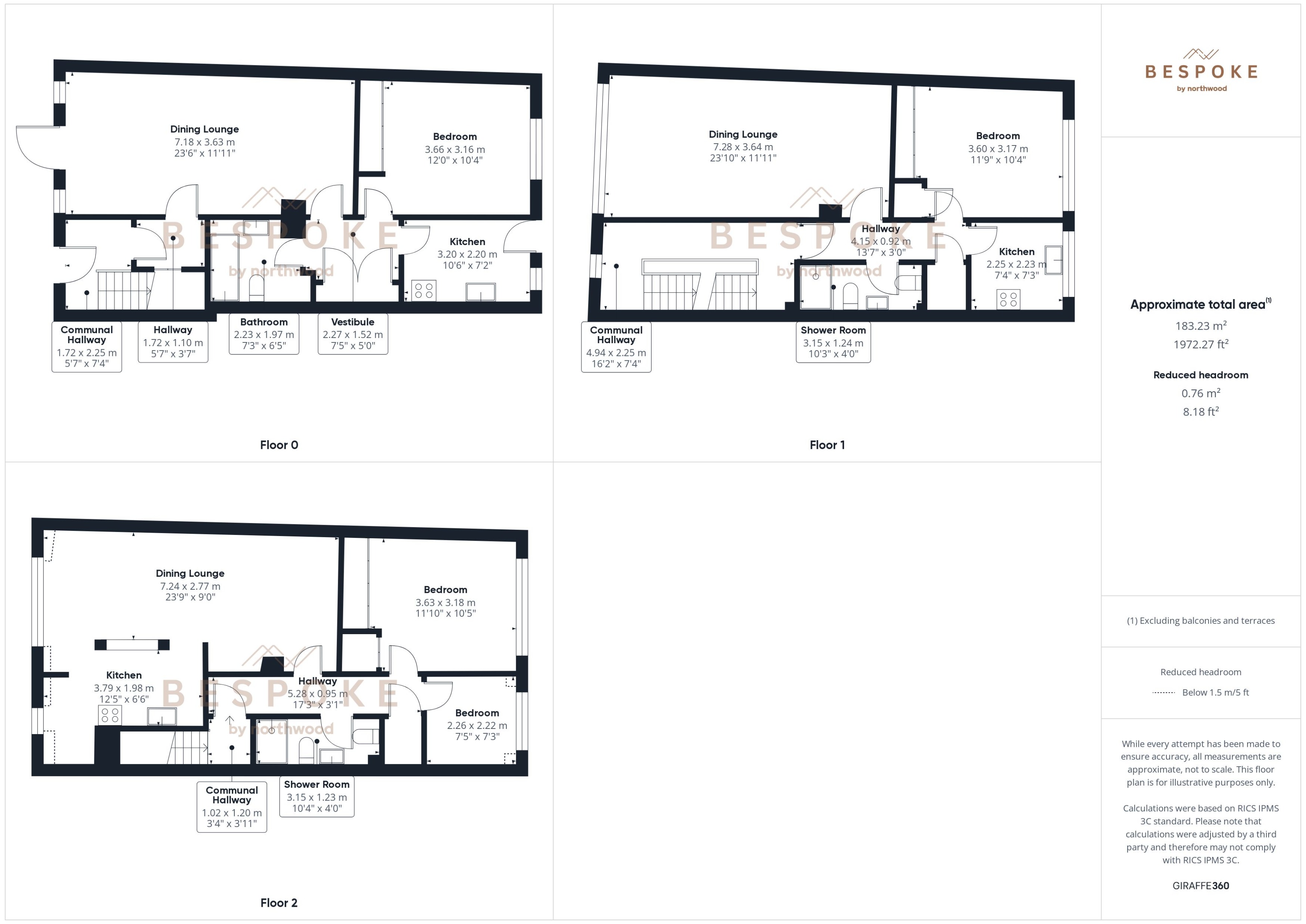
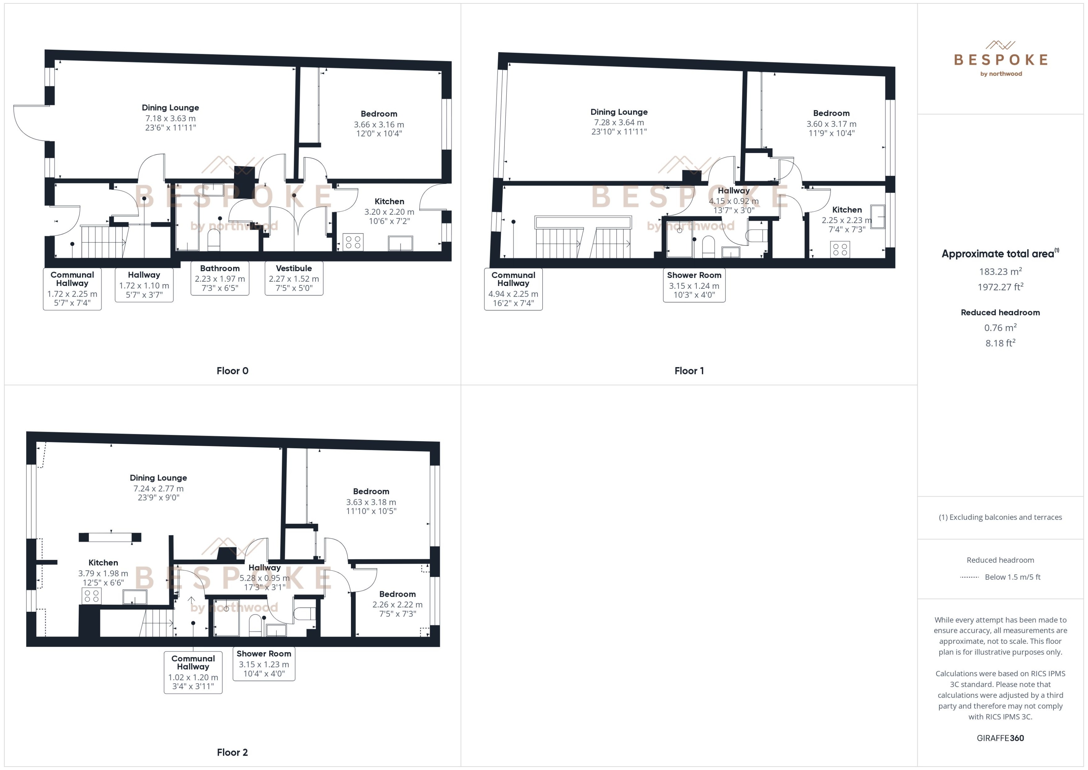
Investment Opportunity - Block of Three Tenanted Apartments in the Heart of Wilmslow

A rare opportunity to acquire a block of three self-contained apartments in the very centre of Wilmslow, offered for sale at £550,000 (open market value £600,000). This fully tenanted investment provides an immediate income stream and consists of:

  • 2a Parkway – A ground-floor one-bedroom apartment
  • 2b Parkway – A mid-floor one-bedroom apartment
  • 2c Parkway – A spacious two-bedroom penthouse apartment

Each apartment benefits from off-road parking, a sought-after feature in this prime location. Situated just moments from Wilmslow’s vibrant town centre, tenants enjoy easy access to an array of shops, restaurants, and transport links, including Wilmslow train station with direct services to Manchester and London.

With all three properties tenants in situ, this is an ideal opportunity for investors looking to secure a well-positioned asset in a high-demand rental market.

For further details or to arrange an internal inspection, contact us today. EPC rating: C. Council tax band: C, Tenure: Freehold,

Additional Information
EPC Rating:
C
Tenure:
Freehold
Council Tax Band:
C

Mortgage calculator

Calculate Your Stamp Duty
£
Results
Stamp Duty To Pay:
Effective Rate:
Tax Band % Taxable Sum Tax

Parkway, Wilmslow, SK9

Struggling to find a property? Get in touch and we'll help you find your ideal property.

Interested in viewing this property?
Book a Viewing
Main menu