3 bedroom Terraced House Sold STC

Tiverton Road, Winklebury, Basingstoke, RG23

£360,000 | Sold STC

3 Bedrooms
1 Bathrooms
2 Receptions

Basingstoke

37 Winchester Street, 
Basingstoke, 
Hampshire, 
RG21 7EF, 
England
Standout Features

Property Description

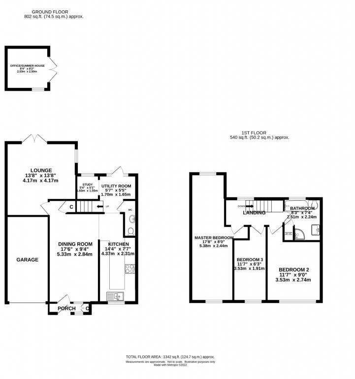
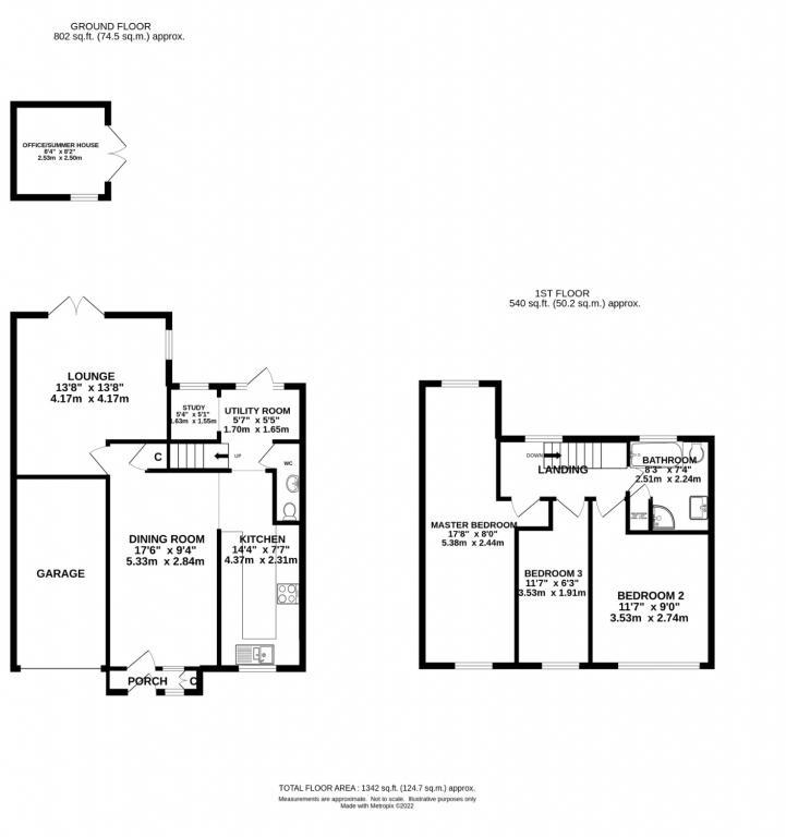
Northwood are pleased to present this well maintained three bedroom terraced house within a coveted residential area of Basingstoke, conveniently situated for public transport, commuter routes and local amenities. The property features a welcoming open plan kitchen/ diner, bright and airy living room, study and utility area and downstairs WC. Upstairs boasts two large double bedrooms, a further single bedroom and sizeable family bathroom complete with separate bath and shower. 

Additionally, the property benefits from an outside office/ summer house, an integrated garage and driveway parking for 2-3 cars. 

This home offers the perfect blend of location, convenience and unique features. Viewing recommended. DO NOT MISS OUT. 

  EPC rating: D. Council tax band: C, Domestic rates: £1602, Tenure: Freehold,

Additional Information
EPC Rating:
D
Tenure:
Freehold
Council Tax Band:
C

Mortgage calculator

Calculate Your Stamp Duty
£
Results
Stamp Duty To Pay:
Effective Rate:
Tax Band % Taxable Sum Tax

Tiverton Road, Winklebury, Basingstoke, RG23

Struggling to find a property? Get in touch and we'll help you find your ideal property.

Interested in viewing this property?
Book a Viewing
Main menu