3 bedroom Semi-detached house Sold STC

Hanover Square, Mackworth, DE22

£220,000 | Sold STC

3 Bedrooms
1 Bathrooms
1 Receptions

Derby

Canal Side Farm Office Canal Side Farm, Stenson Road, 
Stenson, 
Derby, 
DE73 7HL, 
England
Standout Features

Property Description

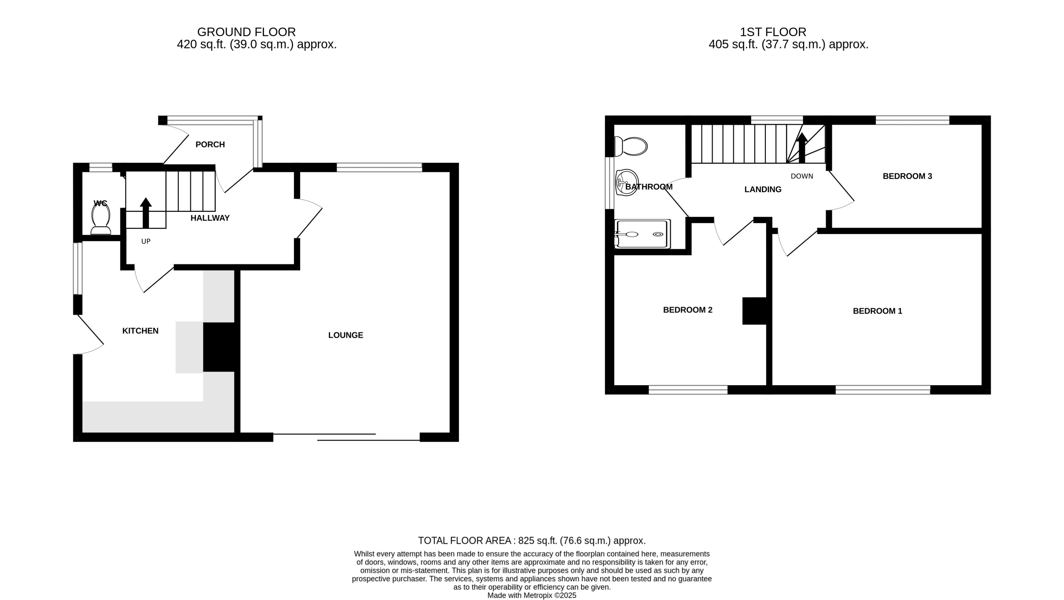
This well-presented three-bedroom semi-detached home occupies a pleasant position within the popular Mackworth area and offers well-balanced accommodation, ideal for first-time buyers, growing families or those looking to upsize.

The property is entered via a useful porch, which leads through into a welcoming entrance hallway. From here, the living room is positioned to the left and provides a comfortable and inviting space, featuring a fireplace and patio doors that open directly onto the rear garden, allowing plenty of natural light and a seamless connection to the outdoors.

Also accessed from the hallway is the fitted kitchen, offering a good range of units and worktop space, along with a convenient downstairs WC.

To the first floor are three good-sized bedrooms, including two doubles and a generous single, all served by a family bathroom.

Externally, the property benefits from a private and enclosed rear garden, ideal for relaxing or entertaining. A detached single garage provides additional storage or parking.

Conveniently located close to local amenities, schools, green spaces and transport links, this is a fantastic opportunity to secure a lovely home in a well-established Derby location.

Early viewing is highly recommended. EPC rating: D. Council tax band: A, Domestic rates: £1463.83, Tenure: Freehold,

Additional Information
EPC Rating:
D
Tenure:
Freehold
Council Tax Band:
A
Rooms
Front External

Well-maintained frontage with access to the front entrance and pathway to the property.

Porch

Useful entrance porch providing space for coats and shoes before leading into the main hallway.

Entrance Hall

Welcoming hallway with access to the ground floor accommodation and stairs rising to the first floor.

Living Room

Positioned to the left of the hallway, this bright and comfortable living room features a fireplace and patio doors opening out to the rear garden.

Kitchen

Fitted kitchen accessed from the hallway, offering a good range of wall and base units with complementary worktops and space for appliances.

WC

Convenient ground floor WC accessed from the hallway.

Landing

Providing access to all three bedrooms and the family bathroom.

Bedroom One

Good-sized double bedroom with space for wardrobes and bedroom furniture.

Bedroom Two

Second double bedroom, ideal for family use or guests.

Bedroom Three

Good sized bedroom, suitable for a child’s room, nursery or home office.

Family Bathroom

Fitted with a bath and overhead shower, wash hand basin and WC.

Rear Garden

Private and enclosed rear garden, perfect for outdoor seating, entertaining or family use.

Buyer Information

In line with AML regulations, Northwood (Derbyshire) Ltd must verify all purchasers’ identities. The cost is £35 + VAT (£42 inc. VAT) per person, payable to our verification partner before a sale can be agreed. These particulars are issued in good faith but do not form part of any offer or contract. Details should be independently verified. Measurements are approximate, and services or appliances have not been tested. Buyers should make their own enquiries or surveys. Please contact us for clarification if travelling some distance to view.


Mortgage calculator

Calculate Your Stamp Duty
£
Results
Stamp Duty To Pay:
Effective Rate:
Tax Band % Taxable Sum Tax

Hanover Square, Mackworth, DE22

Struggling to find a property? Get in touch and we'll help you find your ideal property.

Interested in viewing this property?
Book a Viewing
Main menu