3 bedroom Semi-detached house Sold STC

Beatrice Road, Heaton, Newcastle upon Tyne, NE6

Offers over £395,000 | Sold STC

3 Bedrooms
1 Bathrooms
2 Receptions

Benton

172 Benton Road, 
Benton, 
Newcastle upon Tyne, 
NE7 7UH, 
England
Standout Features

Property Description

Situated on the ever-popular Beatrice Road, in the heart of Heaton, this well-proportioned three-bedroom semi-detached home offers generous living space, traditional character and an excellent family layout, all within a highly sought-after residential location.

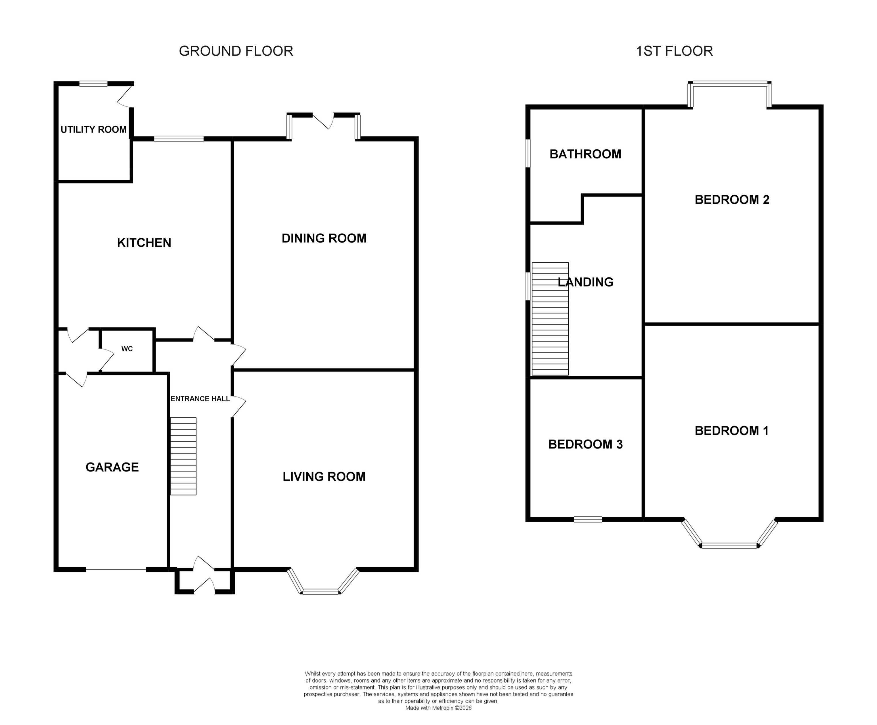
Upon entering the property, you are welcomed by a useful porch area which leads into a spacious and inviting entrance hallway, setting the tone for the accommodation throughout. To the right-hand side is the first of two reception rooms; a bright and airy space enhanced by a charming bay window that allows natural light to flood the room, complemented by a feature fireplace which provides an attractive focal point.

The second reception room is equally generous in size, offering versatile living or dining space, with direct access via patio doors into the private rear garden — ideal for both everyday family living and entertaining.

Positioned at the end of the hallway is the well-appointed kitchen, offering ample worktop space and a range of storage units, creating a practical and functional environment. Leading from the kitchen is a separate utility room, which in turn provides access to the rear garden, a convenient downstairs WC, and internal access to the garage.

To the first floor, the property continues to impress with three well-proportioned bedrooms. The principal bedroom benefits from a large bay window, allowing sunlight to pour in and create a bright and welcoming atmosphere, along with built-in wardrobes providing excellent storage. The second bedroom is another spacious double room, comfortably accommodating a double bed and additional furnishings. The third bedroom, whilst slightly smaller, remains a well-sized room suitable for a child’s bedroom, guest room or home office.

The family bathroom is generously sized and designed to accommodate both a bath and a separate walk-in shower.

Externally, the property boasts gardens to both the front and rear, providing pleasant outdoor space. A private driveway and attached garage offer off-street parking and additional storage. The property further benefits from a fully boarded loft space, offering excellent additional storage potential.

Ideally located in Heaton, the property enjoys close proximity to a wide range of local amenities, reputable schools, parks and excellent transport links into Newcastle city centre and beyond, making it an ideal purchase for families and professionals alike.

Early viewing is highly recommended to appreciate the space, layout and location this property has to offer.

For further information or to arrange your viewing, please contact our Benton office on 0191 266445.

Freehold

Council Tax Band 2025-2026 - D - approx £2411.59 per annum.

EPC Rating - TBC

We endeavour to make our sales particulars accurate and reliable, however, they do not constitute or form part of an offer or any contract and none is to be relied upon as statements of representation or fact. Any services, systems and appliances listed in this specification have not been tested by us and no guarantee as to their operating ability or efficiency is given. All measurements have been taken as a guide to prospective buyers only, and are not precise. If you require clarification or further information on any points, please contact us, especially if you are travelling some distance to view. Fixtures and fittings other than those mentioned are to be agreed with the seller by separate negotiation. EPC rating: Unknown. Council tax band: D, Domestic rates: £2411.59, Tenure: Freehold,

Additional Information
Tenure:
Freehold
Council Tax Band:
D
Rooms
Living Room
4.15m x 4.91m (13'7" x 16'1")
Dining Room
Kitchen
4.78m x 5.2m (15'8" x 17'1")
Bedroom One
5.39m x 3.2m (17'8" x 10'6")
Bedroom Two
5.27m x 3.95m (17'3" x 13'0")
Bedroom Three
2.81m x 2.91m (9'3" x 9'7")
Bathroom
3.36m x 3.03m (11'0" x 9'11")

Mortgage calculator

Calculate Your Stamp Duty
£
Results
Stamp Duty To Pay:
Effective Rate:
Tax Band % Taxable Sum Tax

Beatrice Road, Heaton, Newcastle upon Tyne, NE6

Struggling to find a property? Get in touch and we'll help you find your ideal property.

Interested in viewing this property?
Book a Viewing
Main menu