2 bedroom Terraced House Sold STC

Riddings Street, City Centre, Derby, DE22

£139,950 | Sold STC

2 Bedrooms
1 Bathrooms
2 Receptions

Derby

Canal Side Farm Office Canal Side Farm, Stenson Road, 
Stenson, 
Derby, 
DE73 7HL, 
England
Standout Features

Property Description

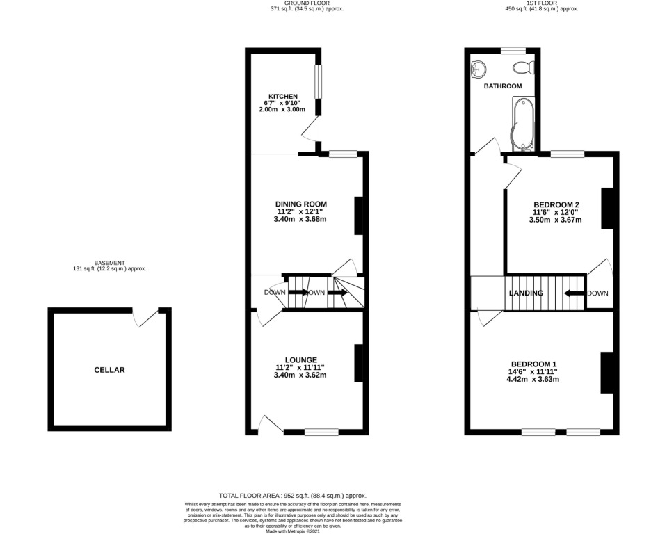
Northwood are delighted to present 57 Riddings Street, DE22 3UT — a beautifully refurbished and well-balanced two double bedroom terrace positioned within a highly convenient Derby location. Finished with style, modern décor and thoughtful touches throughout, this property is ready to move straight into or let out immediately, making it an attractive prospect for first-time buyers, professionals and investors alike.

The ground floor offers two generous reception rooms, each with its own character and versatility. The lounge provides a calm and welcoming space to unwind, while the dining room works perfectly for mealtimes, working from home or entertaining, with a feature chimney breast and open flow into the kitchen. The sleek fitted kitchen is cleverly designed to maximise worktop space, complete with modern gloss cabinetry, wood-effect surfaces, integrated cooking appliances and a breakfast bar area.

Upstairs, two excellent double bedrooms provide generous accommodation, each finished in fresh neutral tones with good space for furnishings. The stylish bathroom is positioned to the rear and features a three-piece suite with shower-over-bath, bringing both practicality and comfort.

To the rear, the low-maintenance landscaped garden is a real asset — neatly paved with gravel edging, offering an ideal spot for outdoor dining, potted plants or relaxing in the warmer months, without the upkeep of lawn care. A useful cellar provides valuable extra storage space rarely found in similar properties.

With Derby City Centre, the University, shops and commuter routes all easily accessible, this home combines charm, convenience and modern living with move-in ease.

A superb turn-key opportunity — whether you're looking for your first home or a solid, ready-to-rent investment. EPC rating: D. Council tax band: A, Domestic rates: £1463.83,

Additional Information
EPC Rating:
D
Council Tax Band:
A
Rooms
Lounge

A bright and welcoming front sitting room featuring a modern neutral décor, contrasting chimney breast feature, fitted carpet and large window allowing an excellent flow of natural light.

Dining Room

A versatile second reception room—equally suited for dining, home working or entertaining—complete with feature fireplace recess, alcove shelving and direct access to the kitchen

Kitchen

Recently upgraded and beautifully finished with wood-block style work surfaces, gloss cabinetry, electric oven with extractor, stainless steel sink and breakfast bar overhang. Window overlooking the garden and access to the rear courtyard.

Bedroom One

A superb double bedroom spanning the width of the property. Light, spacious and stylishly presented with fitted carpet and space for large wardrobes.

Bedroom Two

Another fantastic double room overlooking the rear aspect, featuring built-in recess storage and a charming feature fireplace.

Bathroom

Modern and bright, fitted with a three-piece suite comprising bath with shower over, WC and wash basin. Part-tiled with a clean white finish and natural light from a large window.

Cellar

Useful additional storage space — ideal for bikes, tools or seasonal items.

Rear Garden

A key highlight of this property is the newly landscaped garden — designed for low maintenance and private outdoor enjoyment. The space offers a large paved seating area, gravel border, timber fencing and room for outdoor furniture, BBQs and potted plants. A perfect sunny retreat without the upkeep.

Disclaimer

In line with AML regulations, Northwood (Derbyshire) Ltd must verify all purchasers’ identities. The cost is £35 + VAT (£42 inc. VAT) per person, payable to our verification partner before a sale can be agreed. These particulars are issued in good faith but do not form part of any offer or contract. Details should be independently verified. Measurements are approximate, and services or appliances have not been tested. Buyers should make their own enquiries or surveys. Please contact us for clarification if travelling some distance to view.


Mortgage calculator

Calculate Your Stamp Duty
£
Results
Stamp Duty To Pay:
Effective Rate:
Tax Band % Taxable Sum Tax

Riddings Street, City Centre, Derby, DE22

Struggling to find a property? Get in touch and we'll help you find your ideal property.

Interested in viewing this property?
Book a Viewing
Main menu