2 bedroom Flat For Sale

West Victoria Dock Road, City Quay, Dundee, DD1

Offers over £190,000 | For Sale

2 Bedrooms
2 Bathrooms
1 Receptions

Dundee

2 Panmure Street, 
Dundee, 
DD1 2BW, 
Scotland
Standout Features

Property Description

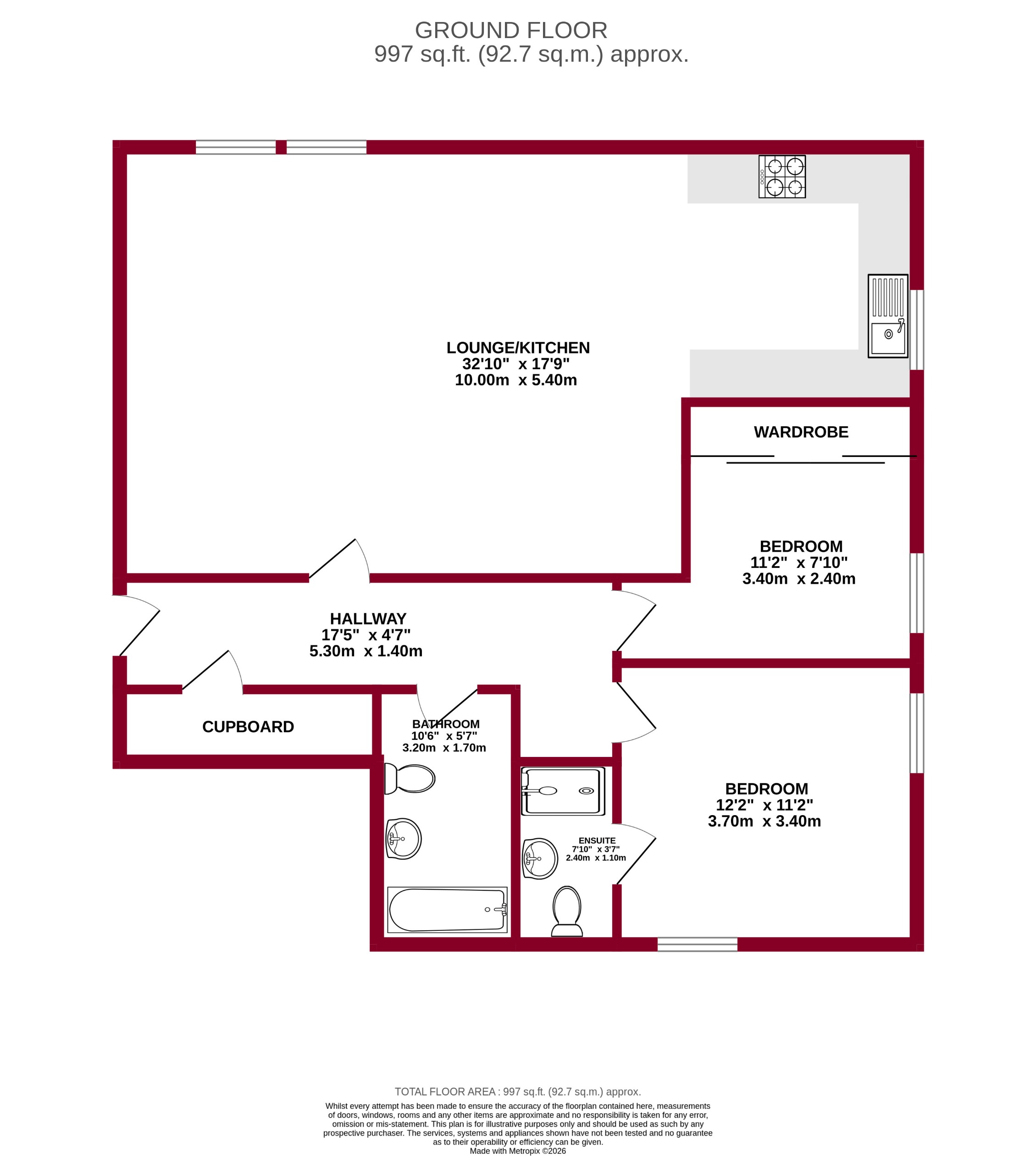
Set within the highly sought-after City Quay development, this bright and spacious 2-bedroom contemporary apartment enjoys a prime corner position on the second floor of a modern building. Perfect for professionals, families, or those seeking stylish city living, this property boasts a wealth of standout features.

The accommodation comprises:

  • Entrance Hallway: Welcoming and well-lit, leading seamlessly to all main rooms.
  • Open Plan Lounge/Kitchen: A generously sized space enhanced by full-length windows, flooding the room with natural light and offering ample room for both relaxation and entertaining.
  • Master Bedroom with Ensuite: A peaceful retreat featuring an ensuite shower room for added convenience. Newly fitted shower.
  • Additional Double Bedroom: Well-proportioned and complete with wardrobe storage.
  • Main Bathroom: A contemporary design with a bath and shower overhead, perfect for unwinding after a long day.
Additional highlights include:
  • Secure entry to the building with lift access to the apartment.
  • Efficient gas combi boiler providing heating and hot water.
  • Good storage space throughout.
  • Allocated private parking spaces for added convenience in this prime location.
Located in the vibrant City Quay area, this property offers modern living at its finest, with easy access to local amenities, transport links, and the city’s best attractions.

Don’t miss the opportunity to view this stunning apartment. EPC rating: B. Council tax band: E, Tenure: Freehold,

Additional Information
EPC Rating:
B
Tenure:
Freehold
Council Tax Band:
E

Mortgage calculator

Calculate Your Stamp Duty
£
Results
Stamp Duty To Pay:
Effective Rate:
Tax Band % Taxable Sum Tax

West Victoria Dock Road, City Quay, Dundee, DD1

Struggling to find a property? Get in touch and we'll help you find your ideal property.

Interested in viewing this property?
Book a Viewing
Main menu