2 bedroom Flat Sold STC
Offers over £115,000 | Sold STC
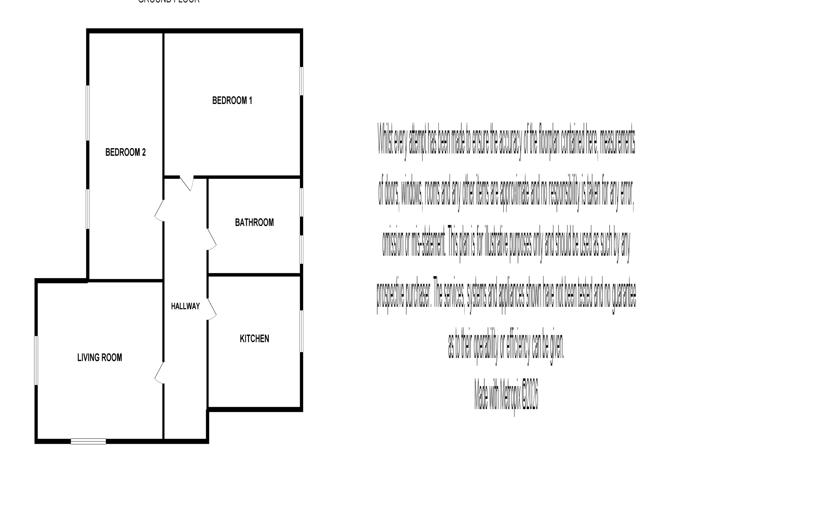
A well-presented two-bedroom first floor flat, conveniently located on Portrush Way in Benton, NE7, close to local amenities, transport links, and schools.
Upon entering, you are greeted by a practical utility space before stairs lead up to the main living areas. A long hallway provides access to all rooms. To the left, the generous living area features large windows, filling the room with natural light, and a charming fireplace, creating a warm and inviting atmosphere.
The kitchen, positioned to the right, offers ample countertop space and a convenient cupboard, perfect for storage and meal preparation. The master bedroom is a comfortable double, with space for additional storage, while the second bedroom is a well-proportioned room with a built-in wardrobe. The bathroom is spacious, complete with a shower over the bath.
Externally, the property benefits from a driveway and a private garden, providing both parking and outdoor space for relaxation.
This flat presents an ideal opportunity for first-time buyers or investors seeking a well-located home in the popular Benton area.
Nestled in a convenient residential neighbourhood, the flat is close to local shops, cafés, and essential amenities. Excellent schools, such as Benton Park Primary and St Mary’s Catholic School, are nearby, making it ideal for families. Commuters benefit from superb transport links, including Longbenton Metro Station and Four Lane Ends Interchange, providing easy access to Newcastle city centre. For leisure, green spaces such as Benton Quarry Park and Rising Sun Country Park are just a short stroll away.
This flat offers the perfect balance of comfort, convenience, and lifestyle, making it a fantastic opportunity to live or invest in Benton.
For further information or to arrange your viewing, please contact our Benton office on 0191 2664455.
Leasehold
Council Tax Band 2025-2026 - A - approx £1557.63 per annum.
EPC Rating - C
We endeavour to make our sales particulars accurate and reliable, however, they do not constitute or form part of an offer or any contract and none is to be relied upon as statements of representation or fact. Any services, systems and appliances listed in this specification have not been tested by us and no guarantee as to their operating ability or efficiency is given. All measurements have been taken as a guide to prospective buyers only, and are not precise. If you require clarification or further information on any points, please contact us, especially if you are travelling some distance to view. Fixtures and fittings other than those mentioned are to be agreed with the seller by separate negotiation. EPC rating: C. Council tax band: A, Domestic rates: £1557.63, Tenure: Leasehold,
| Tax Band | % | Taxable Sum | Tax |
|---|
Struggling to find a property? Get in touch and we'll help you find your ideal property.