1 bedroom Flat For Sale

Chessington Road, West Ewell, Epsom, KT19

£220,000 | For Sale

1 Bedrooms
1 Bathrooms
1 Receptions

Epsom

252 Chessington Road, 
Epsom, 
KT19 9XF, 
England
Standout Features

Property Description

Front Door to

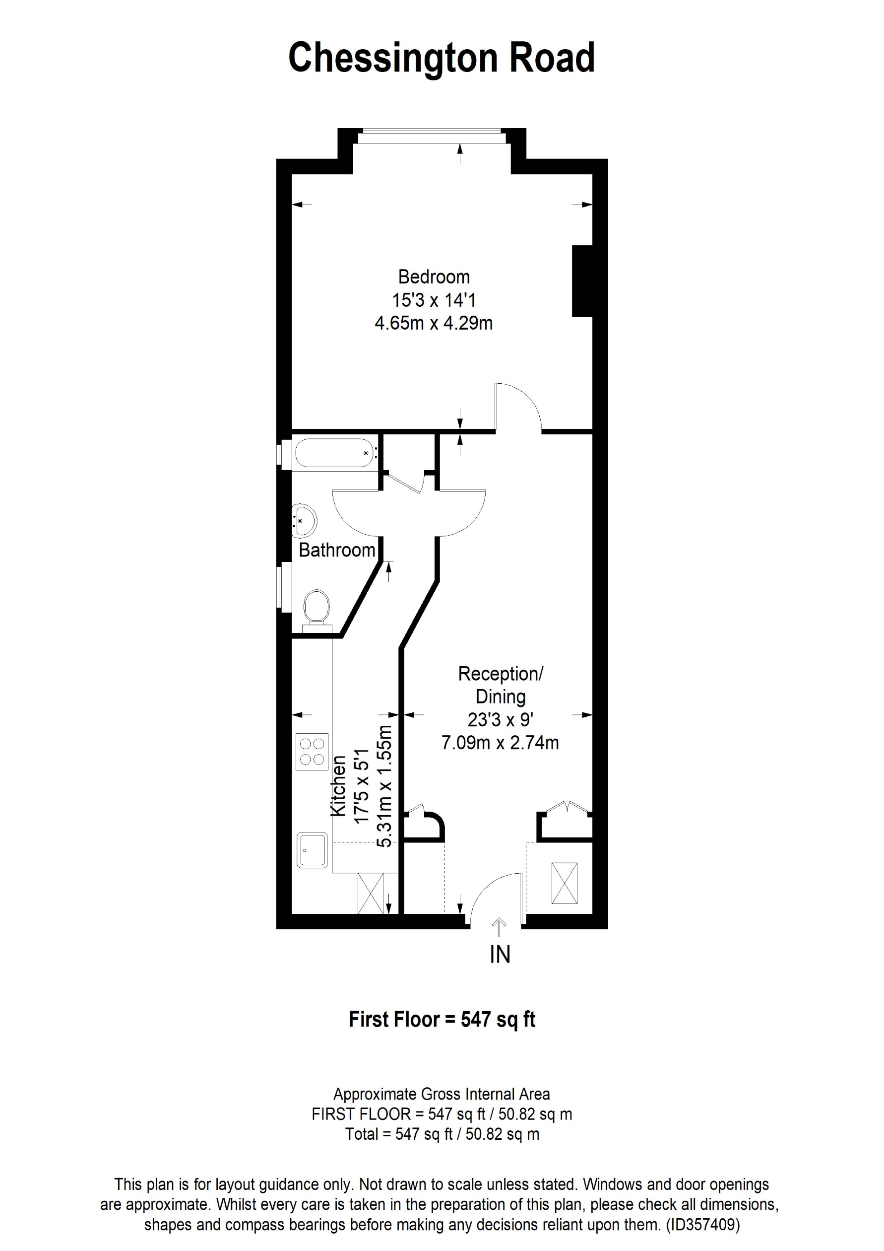
Lounge/Diner
23' 9" x 9' 0" (7.24m x 2.74m) Radiator, air conditioning unit, laminate floor, skylight window

Lobby
Tiled floor, cupboard with space for tumble dryer

Kitchen
17' 5" x 5' 1" (5.31m x 1.55m) Single drainer 1 1/2 bowl stainless steel sink unit inset in roll top work surface, range of cupboards and units, wall mounted boiler, plumbing for autowash, space for fridge and freezer, fitted oven and hob, extractor, access to loft, tiled walls and floor, skylight window

Bedroom 1
15' 3" x 14' 1" (4.65m x 4.29m) Radiator, feature fireplace, access to loft, air conditioning unit, double glazed window

Modern Bathroom
Comprising panel enclosed bath with mixer tap, fitted shower, low level wc, wash hand basin, heated towel rail, tiled walls and floor, two double glazed windows EPC rating: Unknown. Council tax band: C, Domestic rates: £2148.3, Tenure: Leasehold,

Additional Information
Tenure:
Leasehold
Council Tax Band:
C

Mortgage calculator

Calculate Your Stamp Duty
£
Results
Stamp Duty To Pay:
Effective Rate:
Tax Band % Taxable Sum Tax

Chessington Road, West Ewell, Epsom, KT19

Struggling to find a property? Get in touch and we'll help you find your ideal property.

Interested in viewing this property?
Book a Viewing
Main menu