1 bedroom Flat For Sale

Cardiff Mews, Reading, RG1

£179,950 | For Sale

1 Bedrooms
1 Bathrooms
1 Receptions

Reading and Newbury

50 London Street,, 
Reading, 
RG1 4SQ, 
England
Standout Features

Property Description

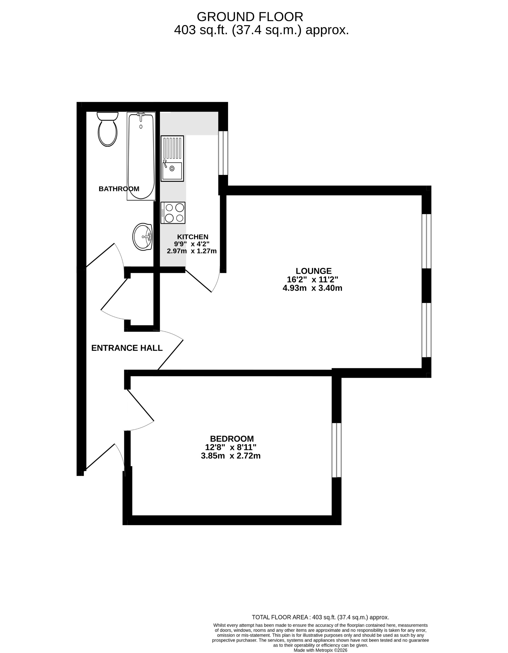
This one-bedroom flat is offered for sale in good condition in a central Reading location, close to a range of local amenities and public transport links.

The property provides one reception room, one kitchen, one bedroom and one bathroom, offering a straightforward layout suited to a variety of needs. Its urban setting places it within convenient reach of Reading town centre, where Broad Street and the surrounding area offer national retailers, supermarkets, cafés, restaurants and leisure facilities.

Being close to Reading station is a key advantage. The station provides frequent direct services to London Paddington, typically taking around 25 minutes on fast services, as well as trains to London Waterloo, Oxford, Newbury, Basingstoke and other destinations across the Thames Valley and beyond. Local bus routes also serve the area, offering further connections around Reading and nearby districts.

There are several green spaces within reach, including the riverside paths along the Thames, which provide walking and cycling routes and access to local pubs and recreational facilities. Reading’s selection of primary and secondary schools, as well as Reading College and the University of Reading, are accessible by public transport or short drives.

This flat is positioned to take advantage of the surrounding urban infrastructure and transport network, making it suitable for buyers seeking a home with straightforward access to the town centre and rail connections.

Details supplied by vendor 

Lease - 88 years remaining

Service charge - £1500pa

Nil ground rent

  EPC rating: C. Council tax band: B, Tenure: Leasehold, Annual service charge: £1500,

Additional Information
EPC Rating:
C
Tenure:
Leasehold
Service Charge:
£1,500 per year
Council Tax Band:
B

Mortgage calculator

Calculate Your Stamp Duty
£
Results
Stamp Duty To Pay:
Effective Rate:
Tax Band % Taxable Sum Tax

Cardiff Mews, Reading, RG1

Struggling to find a property? Get in touch and we'll help you find your ideal property.

Interested in viewing this property?
Book a Viewing
Main menu