2 bedroom Ground floor maisonette Sold STC

Station Avenue, Ewell, Epsom, KT19

£365,000 | Sold STC

2 Bedrooms
1 Bathrooms
1 Receptions

Epsom

252 Chessington Road, 
Epsom, 
KT19 9XF, 
England
Standout Features

Property Description

Front Door to

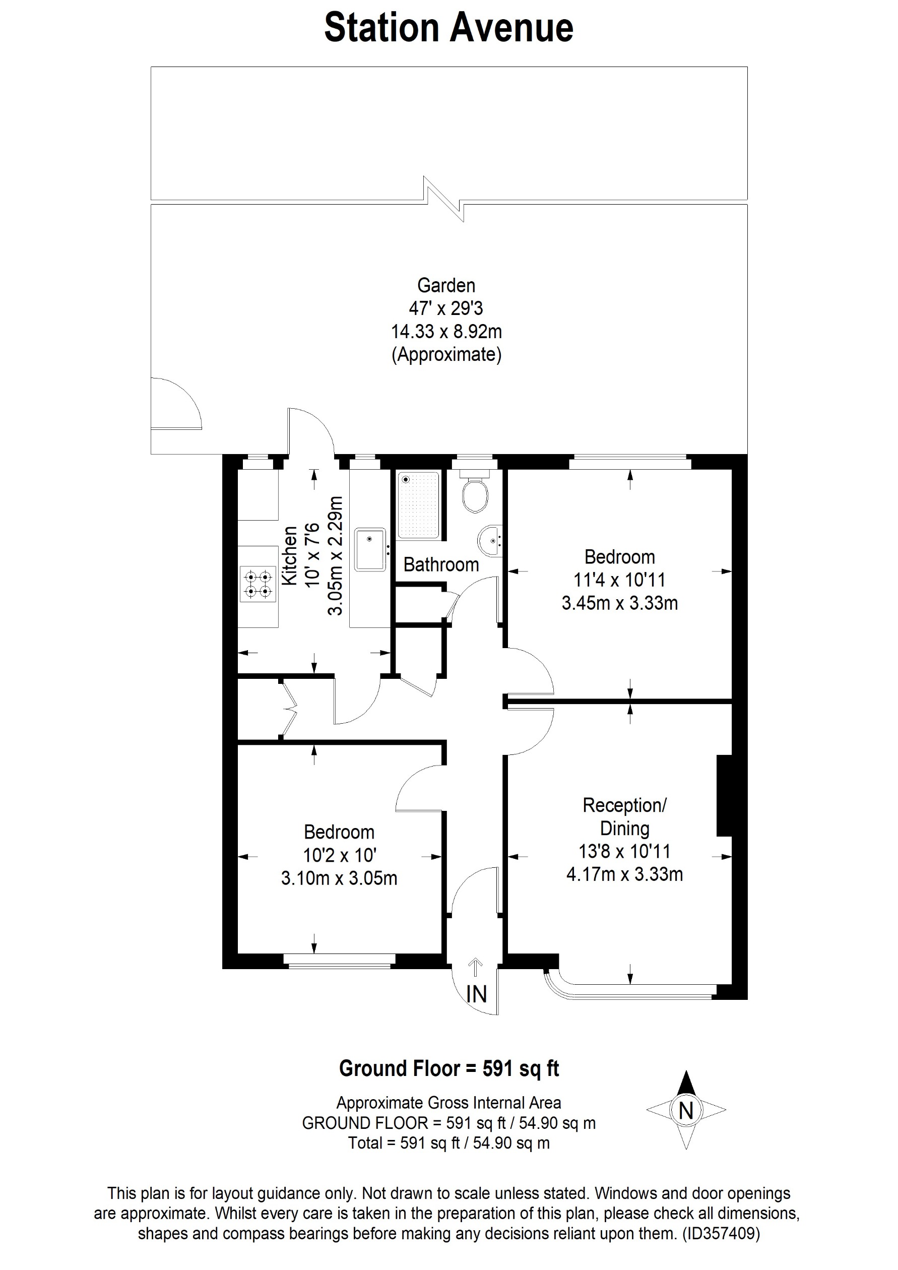
Entrance Hall
Cloaks hanging space, cupboard, laminate floor, radiator, cupboard housing boiler

Lounge
14' 0" x 10' 11" (4.27m x 3.33m) Feature fireplace, radiator, laminate floor, double glazed window with fitted shutters

Kitchen
9' 4" x 7' 6" (2.84m x 2.29m) Single drainer stainless steel sink unit inset in roll top work surface, range of cupboards and units, space for fridge freezer, plumbing for washing machine and dishwasher, space for cooker, radiator, double glazed window, double glazed door to garden

Bedroom 1
10' 2" x 10' 0" (3.10m x 3.05m) Radiator, double glazed window with fitted shutters

Bedroom 2
11' 4" x 10' 11" (3.45m x 3.33m) Radiator, laminate floor, double glazed window

Shower Room
Comprising fitted shower, low level wc, wash hand basin, cupboard, radiator, part tiled walls, double glazed window

Outside

Front Garden
Off street parking

Rear Garden
Mainly laid to lawn, mature borders, patio area, garden shed, side access EPC rating: D. Council tax band: C, Domestic rates: £2051.86, Tenure: Leasehold, Annual ground rent: £4.5, Service charge description: No service charge, Length of lease (remaining): 917 years 10 months,

Additional Information
EPC Rating:
D
Tenure:
Leasehold
Ground Rent:
£4 per year
Council Tax Band:
C

Mortgage calculator

Calculate Your Stamp Duty
£
Results
Stamp Duty To Pay:
Effective Rate:
Tax Band % Taxable Sum Tax

Station Avenue, Ewell, Epsom, KT19

Struggling to find a property? Get in touch and we'll help you find your ideal property.

Interested in viewing this property?
Book a Viewing
Main menu