3 bedroom Terraced House Let Agreed

Greenwood Mount, Meanwood, Leeds, LS6

£1,200 PCM | Let Agreed

Available Now

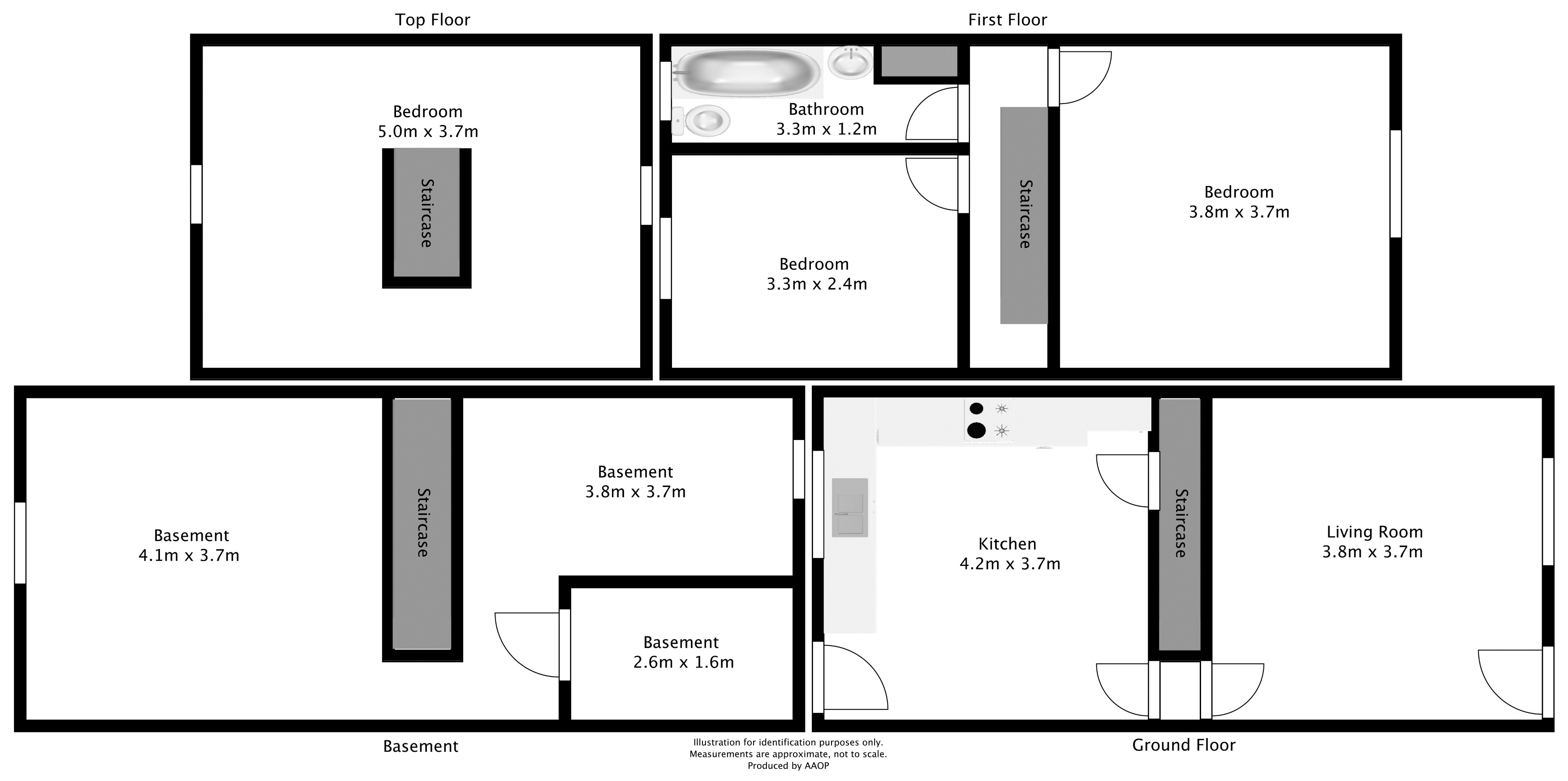
3 Bedrooms
1 Bathrooms
1 Receptions

Leeds

64 Harrogate Road, 
Leeds, 
LS7 4LA, 
England
Letting Details
Deposit:
£1,384
Standout Features

Property Description

A recently refurbished mid-terrace house in this popular area of Meanwood. The property comprises of a great sized lounge with picture rail, a beautiful dining kitchen with integrated appliances including a washing machine & dishwasher. On the first floor there is the master bedroom with wardrobes, smaller single bedroom and main house bathroom which has an electric shower over the bath. The top floor offers a great sized bedroom with dual aspect windows allowing light to pour in. Outside there is a small courtyard at the front and rear and ample on street parking available. Unfurnished. Available immediately. Deposit equivalent to 5 weeks rent. EPC rating: D. Council tax band: B,

Additional Information
EPC Rating:
D
Council Tax Band:
B

Greenwood Mount, Meanwood, Leeds, LS6

Struggling to find a property? Get in touch and we'll help you find your ideal property.

Interested in viewing this property?
Book a Viewing
Main menu